highlight_off
Riferimento annuncio 319777 info

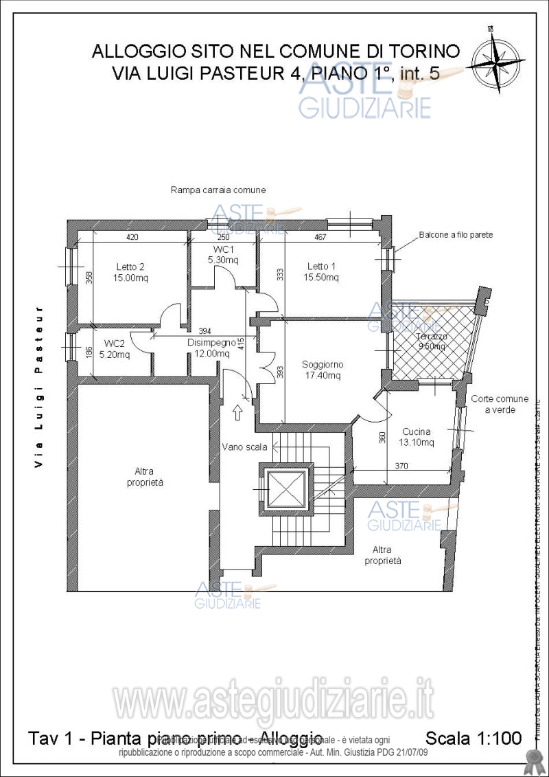
Appartamento Via Pasteur 4, 10100 Torino (TO)

106,00
0
€ 190.000
Vendita all'asta Senza incanto, con gara telematica asincrona - LOTTO UNICO: Alloggio al piano primo (2°° f.t.) dotato di tre affacci e composto di: ingresso/disimpegno, soggiorno, due camere, ampia cucina abitabile, due bagni, un terrazzo ed un balcone, a cui è annessa cantina al piano sotterraneo distinta con il numero “9” nella planimetria del relativo piano allegata al Regolamento di condominio, nonchè box auto privato al piano interrato distinto con il n. “101” nella planimetria del relativo piano allegata al Regolamento di condominio . Prezzo base € 190.000,00 (offerta minima € 142.500,00). Data inizio operazioni di vendita: 27/01/2026 ore 11:00. Giudice Ivana Peila. Professionista delegato alla vendita Avv. Maria Cristina Albano. Custode Giudiziario Ifir Istituto Vendite Giudiziarie Srl - Email "richieste.visite@ivgpiemonte.it". Rif. Tribunale di Torino - Espropriazione immobiliare (cartabia) n. 109/2025

Superficie 106,00 mq
Vani
Bagni
Piano 0

Tipologia di vendita Giudiziaria
Modalità di vendita Asincrona telematica
Termine presentazione offerte 26/01/2026 ore 12:00
Data e ora inizio gara 27/01/2026 ore 11:00
Codice ID astegiudiziarie.it 4339689
106,00
0
€ 190.000

Ti interessa questa vendita?

north_east

Clicca qui per essere indirizzato alla scheda sul sito di provenienza

Bene di astegiudiziarie.it