highlight_off
Riferimento annuncio 299007 info

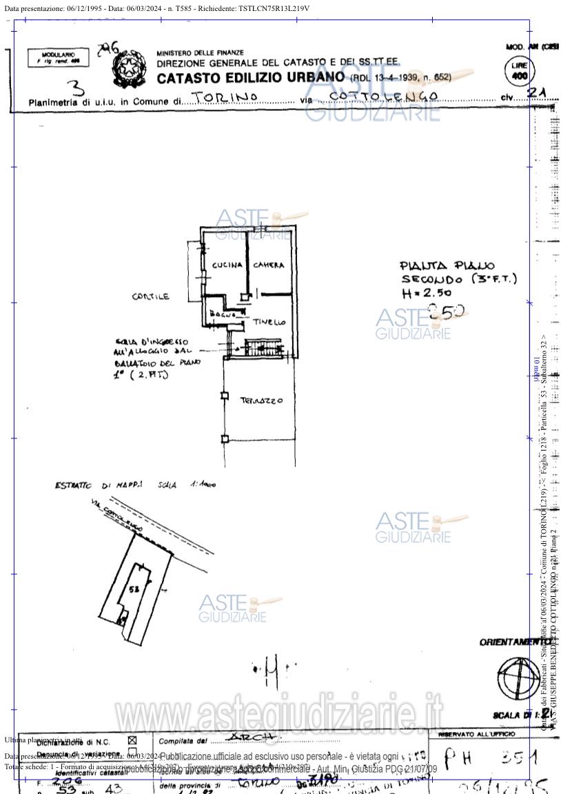
Appartamento Via Cottolengo 21, 10100 Torino (TO)

67,00
0
€ 66.000
Vendita all'asta Senza incanto, con gara telematica asincrona - LOTTO 1: nel corpo di fabbrica indipendente a 3 piani f.t., posto alla destra dell’ingresso da passo carraio:= alloggio articolato su due livelli collegati tra loro da scala interna, con accesso dal ballatoio. Prezzo base € 66.000,00 (offerta minima € 49.500,00). Data inizio operazioni di vendita: 28/10/2025 ore 11:00. Giudice Anna Castellino. Professionista delegato alla vendita Not. Giovanna Ioli. Custode Giudiziario Ivg Torino Ifir - Email "richieste.visite@ivgpiemonte.it"; Tel. 011482822. Rif. Tribunale di Torino - Contenzioso civile n. 21603/2023

Superficie 67,00 mq
Vani
Bagni
Piano 0

Tipologia di vendita Giudiziaria
Modalità di vendita Asincrona telematica
Termine presentazione offerte 27/10/2025 ore 20:00
Data e ora inizio gara 28/10/2025 ore 11:00
Codice ID astegiudiziarie.it 4323009
67,00
0
€ 66.000

Ti interessa questa vendita?

north_east

Clicca qui per essere indirizzato alla scheda sul sito di provenienza

Bene di astegiudiziarie.it