highlight_off
Riferimento annuncio 297429 info

Appartamento Via S. Vito, 152, 85050 Tito PZ, Italia, 85050 Tito (PZ)

7,50
193,00
2
0
€ 242.025
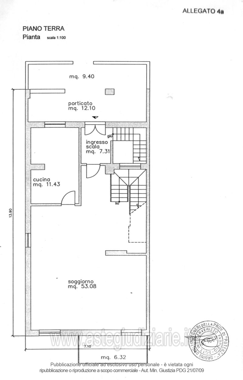
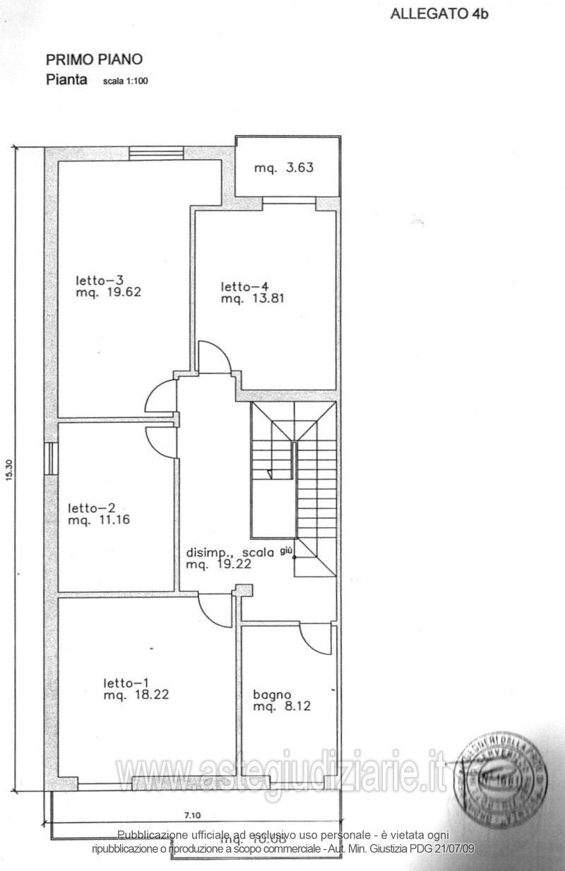
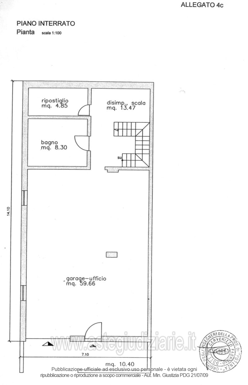
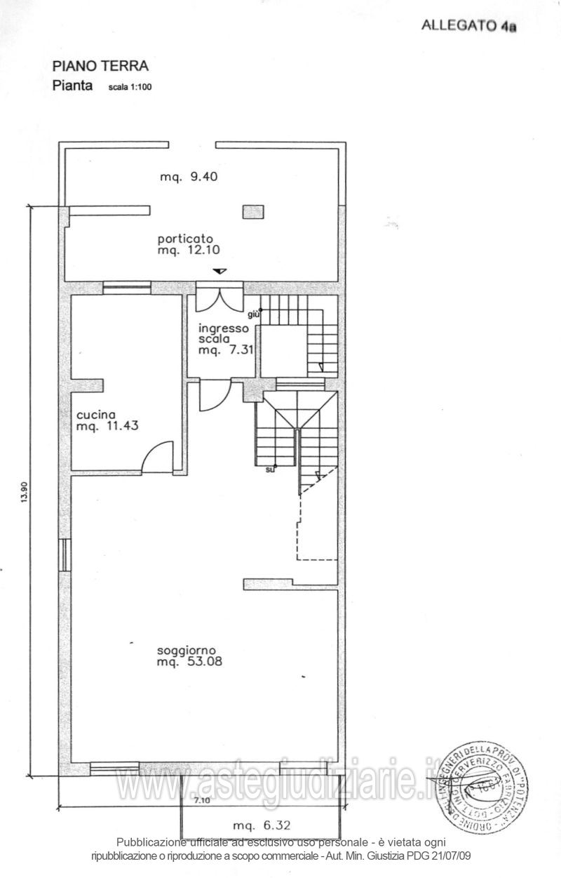
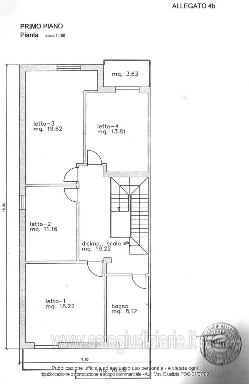
Vendita all'asta Senza incanto - LOTTO UNICO: piena ed intera proprietà (1/1) di un immobile ubicato in TITO (PZ) alla via S. Vito n.152 composto da abitazione a piano terra con porticato, da un’abitazione al piano primo con androne al piano terra e scalinata e un locale garage al piano interrato. Prezzo base € 242.025,00 (offerta minima € 181.518,75). Data vendita 20/11/2025 ore 17:00. Professionista delegato alla vendita Avv. Francesco Missanelli - Email "francescomissanelli@gmail.com"; Tel. 0971443116. Custode Giudiziario Avv. Francesco Missanelli - Email "francescomissanelli@gmail.com"; Tel. 0971443116. Rif. Tribunale di Potenza - Esecuzione immobiliare post legge 80 n. 143/2008

Superficie 193,00 mq
Vani 7,50
Bagni 2
Piano 0

Tipologia di vendita Giudiziaria
Modalità di vendita Presso il venditore
Termine presentazione offerte 01/01/1900 ore 00:00
Data e ora inizio gara 20/11/2025 ore 17:00
Codice ID astegiudiziarie.it 222677
7,50
193,00
2
0
€ 242.025

Ti interessa questa vendita?

north_east

Clicca qui per essere indirizzato alla scheda sul sito di provenienza

Bene di astegiudiziarie.it