highlight_off
Riferimento annuncio 244455 info

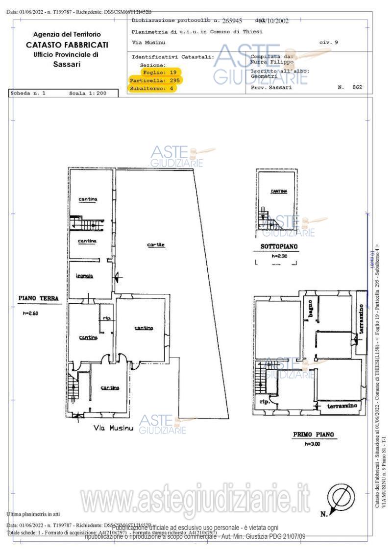
Appartamento Via Musinu n.7, 07047 Thiesi (SS)

0
€ 20.000
Vendita all'asta Senza incanto - LOTTO UNICO: Fabbricatoa Thiesi (SS) - Via Musinu n.7, piano T-1; distinto in catasto fabbricati Fg. 19, Part. 295, Sub. 4, Categoria A3 - Fg. 19, Part. 295, Sub. 5, Categoria C6, P.terra e Primo, ampio ingresso, disimpegno, bagno, lavanderia locali sgombero al piano terra; disimpegno/corridoio, tre vani letto, soggiorno, cucina dispensa, bagno e terrazzi al P.primo, il tutto con annessa area cortilizia esclusiva, con irregolarità, da considerarsi NON SANABILI come DA elaborato peritale depositato in atti. Prezzo base € 20.000,00 (offerta minima € 15.000,00). Data vendita 09/03/2026 ore 17:00. Giudice Remonti. Professionista delegato alla vendita Avv. Fadda. Custode Giudiziario Istituto Vendite Giudiziarie Sassari - Email "visitaivgsassari@gmail.com"; Tel. 079260228. Rif. Tribunale di Sassari - Esecuzione immobiliare post legge 80 n. 186/2021

Superficie mq
Vani
Bagni
Piano 0

Tipologia di vendita Giudiziaria
Modalità di vendita Presso il venditore
Termine presentazione offerte 01/01/1900 ore 00:00
Data e ora inizio gara 09/03/2026 ore 17:00
Codice ID astegiudiziarie.it 4280698
0
€ 20.000

Ti interessa questa vendita?

north_east

Clicca qui per essere indirizzato alla scheda sul sito di provenienza

Bene di astegiudiziarie.it