highlight_off
Riferimento annuncio 322003 info

Appartamento Piazza Giacomo Saputo, 11, 90049 Terrasini PA, Italia, 90049 Terrasini (PA)

0
€ 84.000
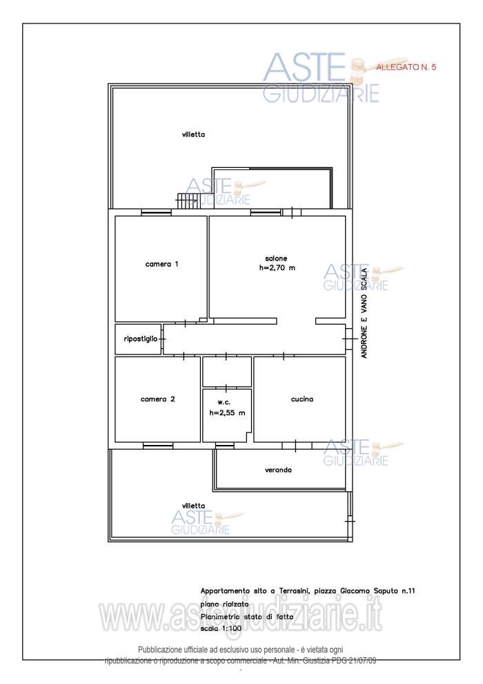
Vendita all'asta Senza incanto, con gara telematica sincrona mista - LOTTO UNICO: intera proprietà superficiaria dell’appartamento sito in Terrasini (Pa), piazza Giacomo Saputo n.11, piano rialzato, con posto auto nel parcheggio collettivo al piano seminterrato. Composto da salone, due camere da letto, cucina, w.c. bagno, ripostiglio e corridoio, due balconi, uno dei quali chiuso a veranda, e due aree esterne a villetta, di cui soltanto una accessibile dall’appartamento, per una superficie utile pari a 93,75 mq. circa e superficie commerciale dell’immobile pari a 114,00 mq. circa. Prezzo base € 84.000,00 (offerta minima € 63.000,00). Data vendita 10/02/2026 ore 10:00. Professionista delegato alla vendita Avv. Calogero Pisciotta - Email "pisciotta.avvocato@gmail.com". Custode Giudiziario Avv. Calogero Pisciotta - Email "pisciotta.avvocato@gmail.com". Rif. Tribunale di Palermo - Esecuzione immobiliare post legge 80 n. 244/2022

Superficie mq
Vani
Bagni
Piano 0

Tipologia di vendita Giudiziaria
Modalità di vendita Sincrona mista
Termine presentazione offerte 01/01/1900 ore 00:00
Data e ora inizio gara 10/02/2026 ore 10:00
Codice ID astegiudiziarie.it 4340437
0
€ 84.000

Ti interessa questa vendita?

north_east

Clicca qui per essere indirizzato alla scheda sul sito di provenienza

Bene di astegiudiziarie.it