highlight_off
Riferimento annuncio 326719 info

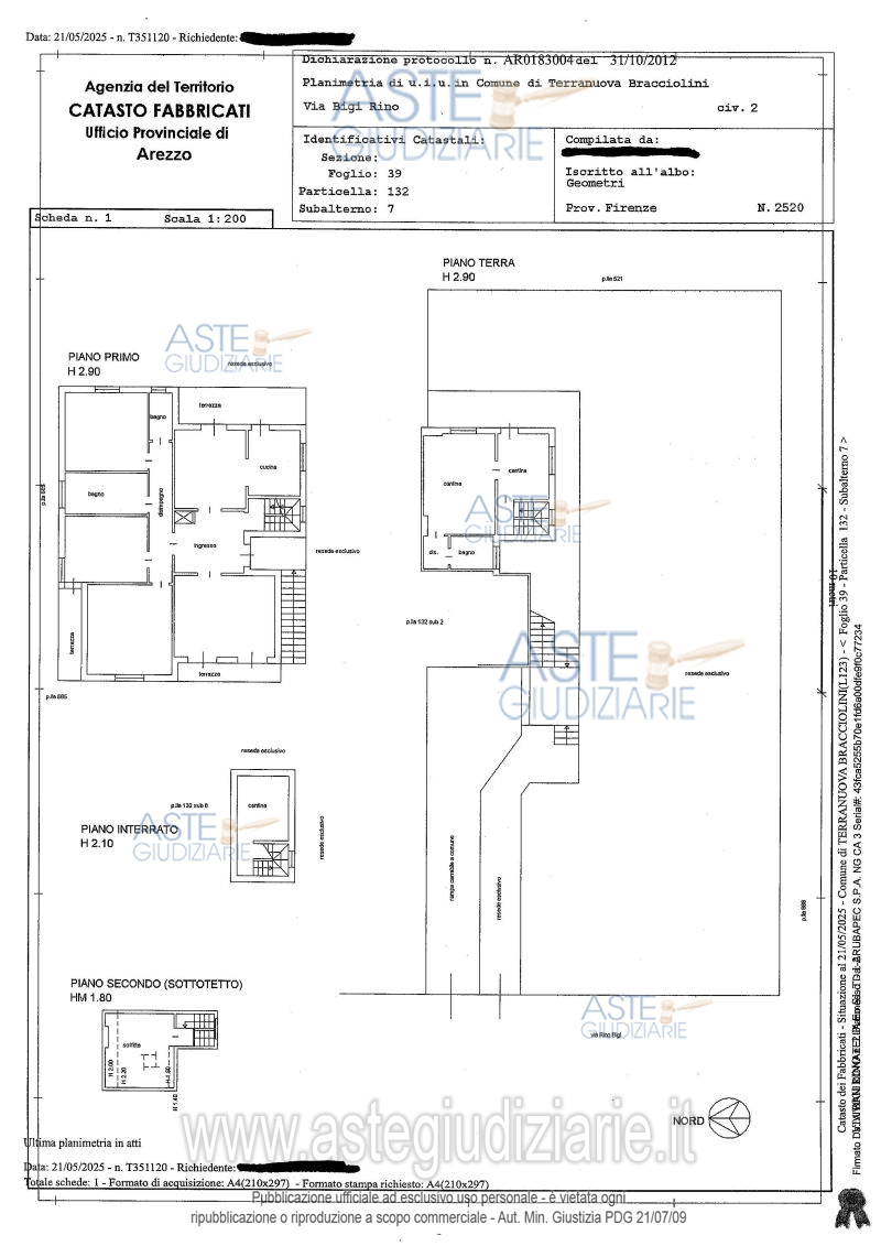
Appartamento Via Rino Bigi n. 2, 52028 Terranuova Bracciolini AR, Italia, 52028 Terranuova Bracciolini (AR)

0
€ 226.265
Vendita all'asta Senza incanto, con gara telematica sincrona mista - LOTTO UNICO: Appartamento posto al primo piano di un fabbricato della tipologia bifamiliare, oltre a proporzionali diritti sulle parti comuni. Con accesso indipendente dal resede di proprietà esclusiva composto da: ingresso , soggiorno, pranzo, cucina, disimpegno, tre camere, doppi servizi e tre terrazze; due locali ad uso cantina al piano terra; una cantina al piano interrato e locale soffitta al piano sottotetto. L’appartamento si completa di autorimessa al piano interrato. Prezzo base € 226.265,00 (offerta minima € 169.698,75). Data vendita 14/04/2026 ore 11:00. Giudice Elisabetta Rodinò Di Miglione. Professionista delegato alla vendita Andrea Berti - Email "avv.andreaberti@virgilio.it"; Tel. 3473717180. Custode Giudiziario Istituto Vendite Giudiziarie Arezzo-Siena - Email "visite.ivg@gmail.com"; Cell. 3397337017; Tel. 0577318111. Rif. Tribunale di Arezzo - Espropriazione immobiliare (cartabia) n. 225/2024

Superficie mq
Vani
Bagni
Piano 0

Tipologia di vendita Giudiziaria
Modalità di vendita Sincrona mista
Termine presentazione offerte 01/01/1900 ore 00:00
Data e ora inizio gara 14/04/2026 ore 11:00
Codice ID astegiudiziarie.it 4342405
0
€ 226.265

Ti interessa questa vendita?

north_east

Clicca qui per essere indirizzato alla scheda sul sito di provenienza

Bene di astegiudiziarie.it