highlight_off
Riferimento annuncio 317649 info

Appartamento Via dei Tessali 8, 87010 Terranova da Sibari (CS)

306,80
0
€ 50.282
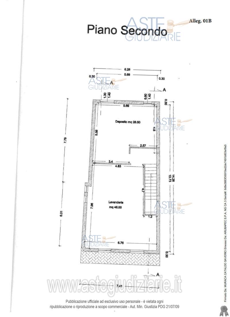
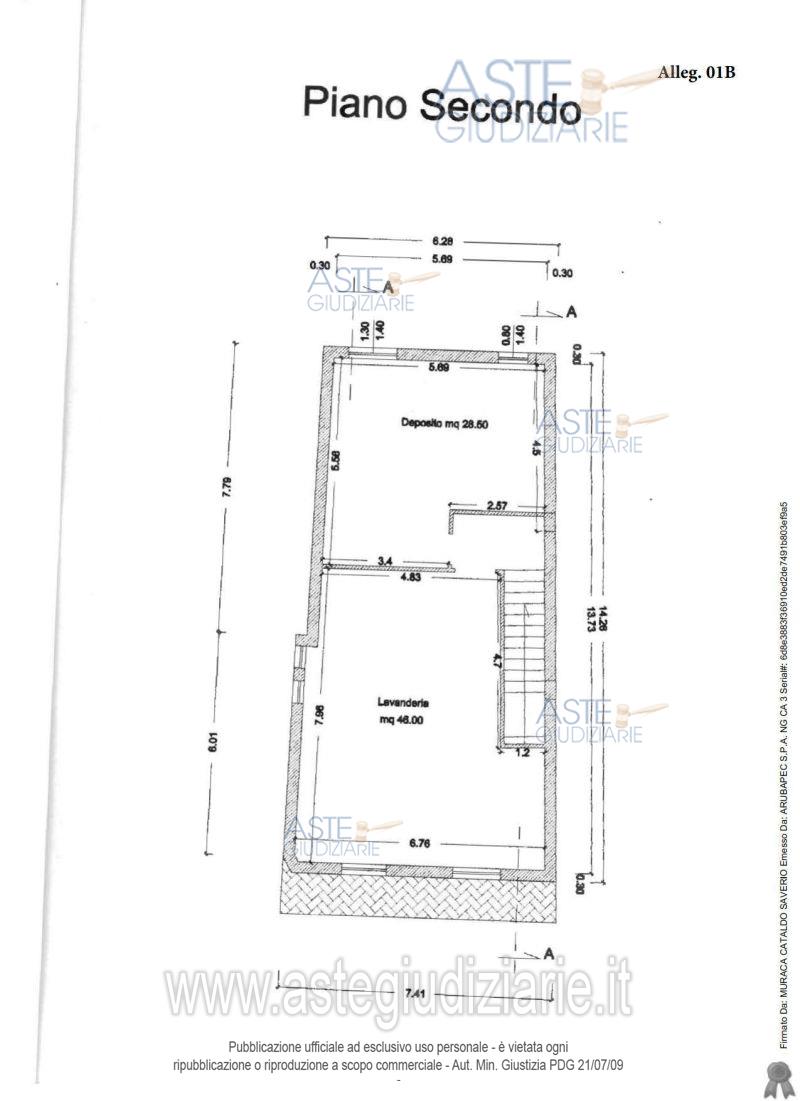
Vendita all'asta Senza incanto, con gara telematica sincrona - LOTTO UNICO: Casa unifamiliare - con garage - tavernetta e accessori al Piano Terra e abitazione al Piano Primo e Secondo, ubicato a Terranova da Sibari (CS), via Siris, n. 8 (ex via Mileto n.8), ora Via dei Tessali, 8, contraddistinta in catasto al foglio 30 particella 726 sub. 1-2-4 (la retrostante corte di cui al sub. 3 è esclusa dalla vendita). Prezzo base € 50.281,88 (offerta minima € 37.711,41). Data vendita 23/07/2026 ore 16:00. Giudice: Giuliana Gaudiano. Professionista delegato alla vendita: Dott. Francesco Gentile - Email "francescogentile0505@gmail.com". Custode Giudiziario: Dott. Francesco Gentile - Email "francescogentile0505@gmail.com"; Tel. 098/1582353476331424. Rif. Tribunale di Castrovillari - Espropriazione immobiliare (cartabia) n. 47/2024

Superficie 306,80 mq
Vani
Bagni
Piano 0

Tipologia di vendita Giudiziaria
Modalità di vendita Sincrona telematica
Termine presentazione offerte 16/07/2026 ore 23:59
Data e ora inizio gara 23/07/2026 ore 16:00
Codice ID astegiudiziarie.it 4338137
306,80
0
€ 50.282

Ti interessa questa vendita?

north_east

Clicca qui per essere indirizzato alla scheda sul sito di provenienza

Bene di astegiudiziarie.it