highlight_off
Riferimento annuncio 325338 info

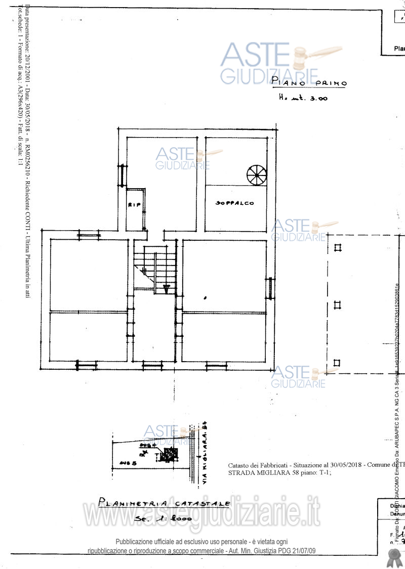
Appartamento Via Migliara 57, 04019 Terracina LT, Italia, 04019 Terracina (LT)

9,50
2068,00
0
€ 318.568
Vendita all'asta Senza incanto, con gara telematica asincrona - LOTTO UNICO: Lotto Unico: Immobili siti in Terracina (LT), Via Migliara 57 n. 84, per il diritto di piena proprietà (1/1): - Bene 1: Fabbricato per civile abitazione della superficie di circa mq. 328, con circostante area annessa di pertinenza esclusiva della superficie di mq. 2.140 tra coperto e scoperto, - Bene 2: Appezzamento di terreno agricolo per una superficie di are 08 72 (mq. 872) - Bene 3: Appezzamento di terreno agricolo per una superficie di are 8,68 (mq. 868). Prezzo base € 318.568,10 (offerta minima € 238.926,00). Data inizio operazioni di vendita: 31/03/2026 ore 14:00. Professionista delegato alla vendita Avv. Gianmichele Niglio - Email "gianmichele.niglio@libero.it"; Cell. 3289155032; Tel. 0773624246. Custode Giudiziario Avv. Gianmichele Niglio - Email "gianmichele.niglio@libero.it"; Cell. 3289155032; Tel. 0773624246. Rif. Tribunale di Latina - Esecuzione immobiliare post legge 80 n. 85/2019

Superficie 2068,00 mq
Vani 9,50
Bagni
Piano 0

Tipologia di vendita Giudiziaria
Modalità di vendita Asincrona telematica
Termine presentazione offerte 30/03/2026 ore 13:00
Data e ora inizio gara 31/03/2026 ore 14:00
Codice ID astegiudiziarie.it 4343661
9,50
2068,00
0
€ 318.568

Ti interessa questa vendita?

north_east

Clicca qui per essere indirizzato alla scheda sul sito di provenienza

Bene di astegiudiziarie.it