highlight_off
Riferimento annuncio 323219 info

Appartamento Via Du Cros, 20, 04019 Borgo Hermada LT, Italia, 04019 Terracina (LT)

8,00
184,07
3
0
€ 194.000
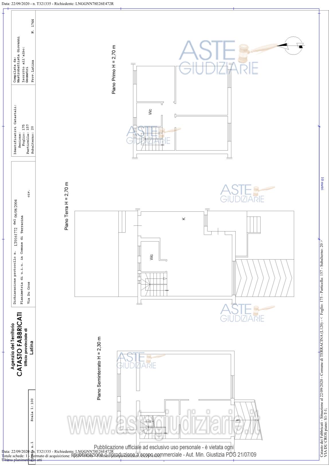
Vendita all'asta Senza incanto, con gara telematica asincrona - LOTTO UNICO: QUOTA 1000/1000 DI UN VILLINO A SCHIERA UBICATO IN TERRACINA (LT) LOC. B.GO HERMADA, VIA DU CROS, 20, PIANO S1-T-1-2; L'IMMOBILE E' DISLOCATO SU DUE PIANI FUORI TERRA, TERRAZZO PRATICABILE DI COPERTURA E UN PIANO SEMINT., TUTTO COLLEGATO DA SCALA INTERNA; SUL FRONTE E SUL RETRO DELL'IMMOBILE E' PRESENTE AREA CORTILIZIA DI PERTINENZA ESCLUSIVA. SUPERFICIE CONVENZION. 184,07 MQ. DI CUI: VILLINO 133,00 MQ.; AUTORIM./CANTINA 31,50 MQ.; TERRAZZO 3,32 MQ.; TERRAZZO 6,69 MQ.; CORTE 5,52 MQ.: LOGGIA 4,04 MQ. . Prezzo base € 194.000,00 (offerta minima € 145.500,00). Data inizio operazioni di vendita: 10/03/2026 ore 16:00. Giudice Dott. Elena Saviano. Professionista delegato alla vendita Dott. Luciano Lodo - Email "luciano.lodo@virgilio.it"; Tel. 0773661293. Custode Giudiziario Dott. Luciano Lodo - Email "luciano.lodo@virgilio.it"; Tel. 0773661293. Rif. Tribunale di Latina - Esecuzione immobiliare post legge 80 n. 358/2018

Superficie 184,07 mq
Vani 8,00
Bagni 3
Piano 0

Tipologia di vendita Giudiziaria
Modalità di vendita Asincrona telematica
Termine presentazione offerte 01/01/1900 ore 00:00
Data e ora inizio gara 10/03/2026 ore 16:00
Codice ID astegiudiziarie.it 4341499
8,00
184,07
3
0
€ 194.000

Ti interessa questa vendita?

north_east

Clicca qui per essere indirizzato alla scheda sul sito di provenienza

Bene di astegiudiziarie.it