highlight_off
Riferimento annuncio 247737 info

Appartamento VIA DEL PIEGARELLO N.55, 04019 Terracina (LT)

8,50
147,00
0
€ 180.663
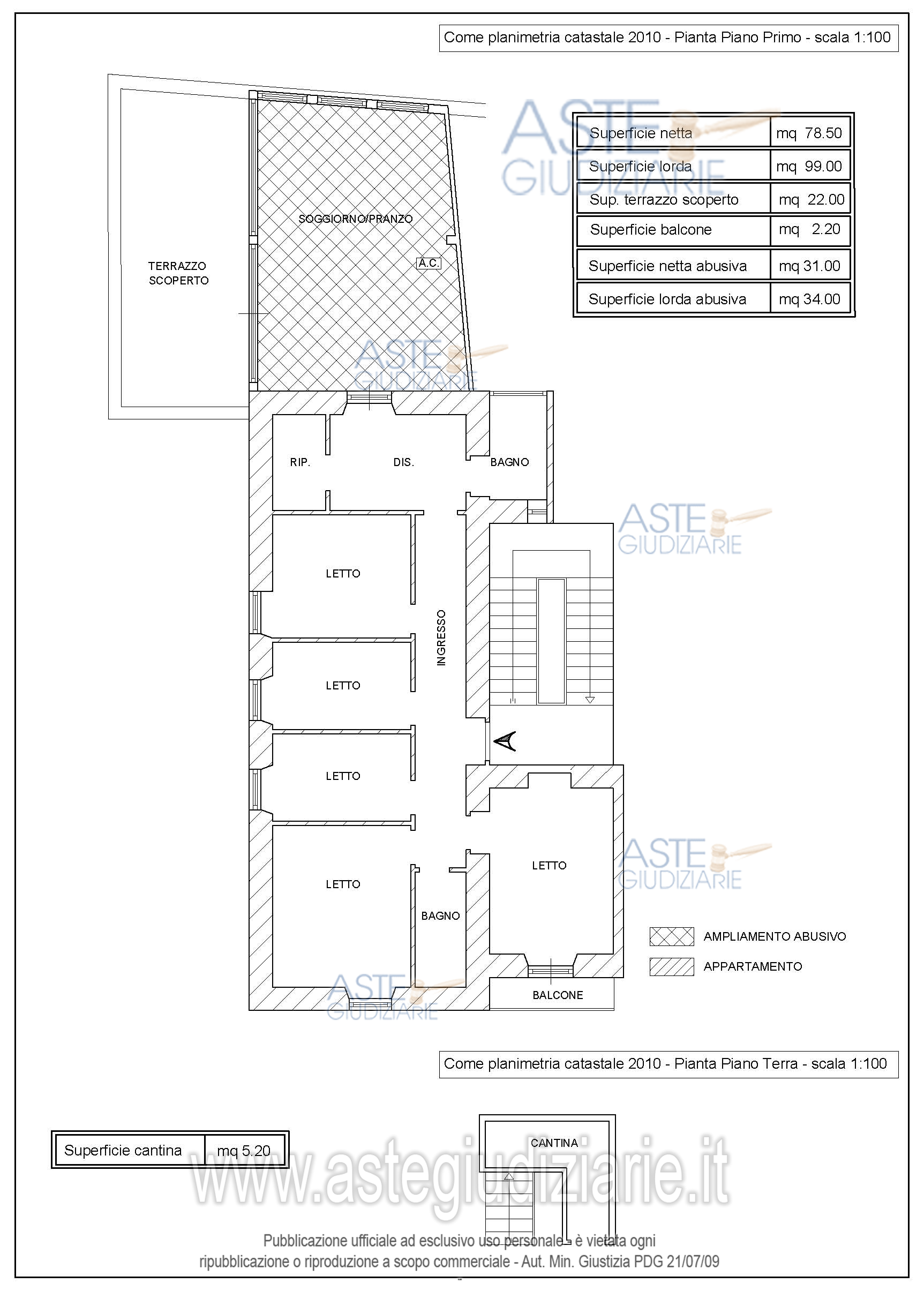
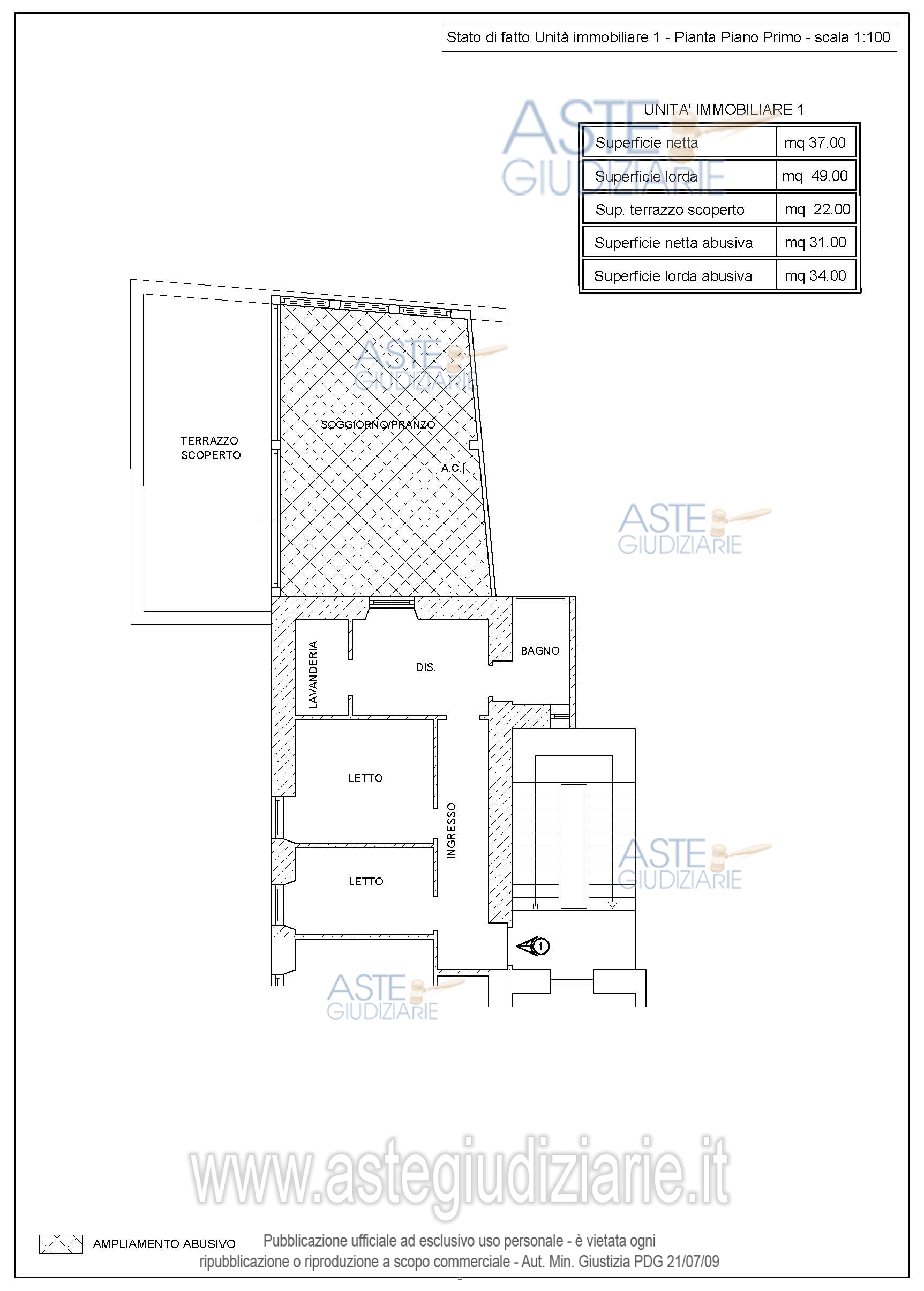
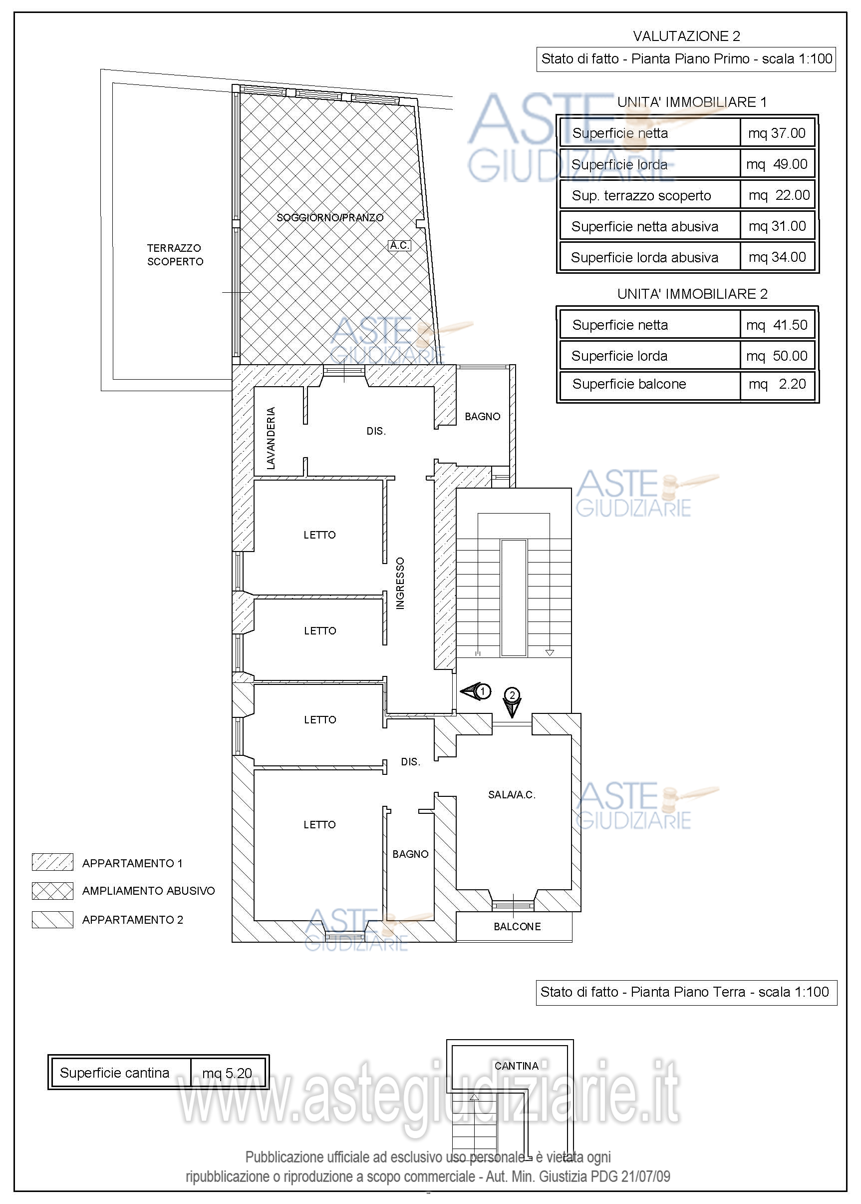
Vendita all'asta Senza incanto, con gara telematica asincrona - LOTTO UNICO: Appartamento posto al piano primo di edificio di tre piani fiori terra realizzato ante 01.09.1967.Allo stato attuale risulta essere diviso in die unità immobiliari con ingresso autonomo e precisamente: UNITA N. 1 composta da ingresso, due camere da letto, disimpegno, un wc, un ripostiglio, sala con angolocottura ed un terrazzo a livello;UNITA' N. 2 composta da sala con angolo cottura, due camere, disimpegno, un bagno ed un balcone a livello.L'immobile è dotato di cantina posta al piano terra. Prezzo base € 180.663,00 (offerta minima € 135.497,25). Data inizio operazioni di vendita: 21/01/2026 ore 10:00. Professionista delegato alla vendita Dott. Francesca Di Russo - Email "studiodirusso@libero.it"; Cell. 3200244014; Tel. 0773693350. Custode Giudiziario Dott. Francesca Di Russo - Email "studiodirusso@libero.it"; Cell. 3200244014; Tel. 0773693350. Rif. Tribunale di Latina - Esecuzione immobiliare post legge 80 n. 309/2021

Superficie 147,00 mq
Vani 8,50
Bagni
Piano 0

Tipologia di vendita Giudiziaria
Modalità di vendita Asincrona telematica
Termine presentazione offerte 20/01/2026 ore 13:00
Data e ora inizio gara 21/01/2026 ore 10:00
Codice ID astegiudiziarie.it 4283077
8,50
147,00
0
€ 180.663

Ti interessa questa vendita?

north_east

Clicca qui per essere indirizzato alla scheda sul sito di provenienza

Bene di astegiudiziarie.it