highlight_off
Riferimento annuncio 313949 info

Appartamento Via del Carnano, 4/A, 05100 Terni (TR)

86,00
0
€ 103.500
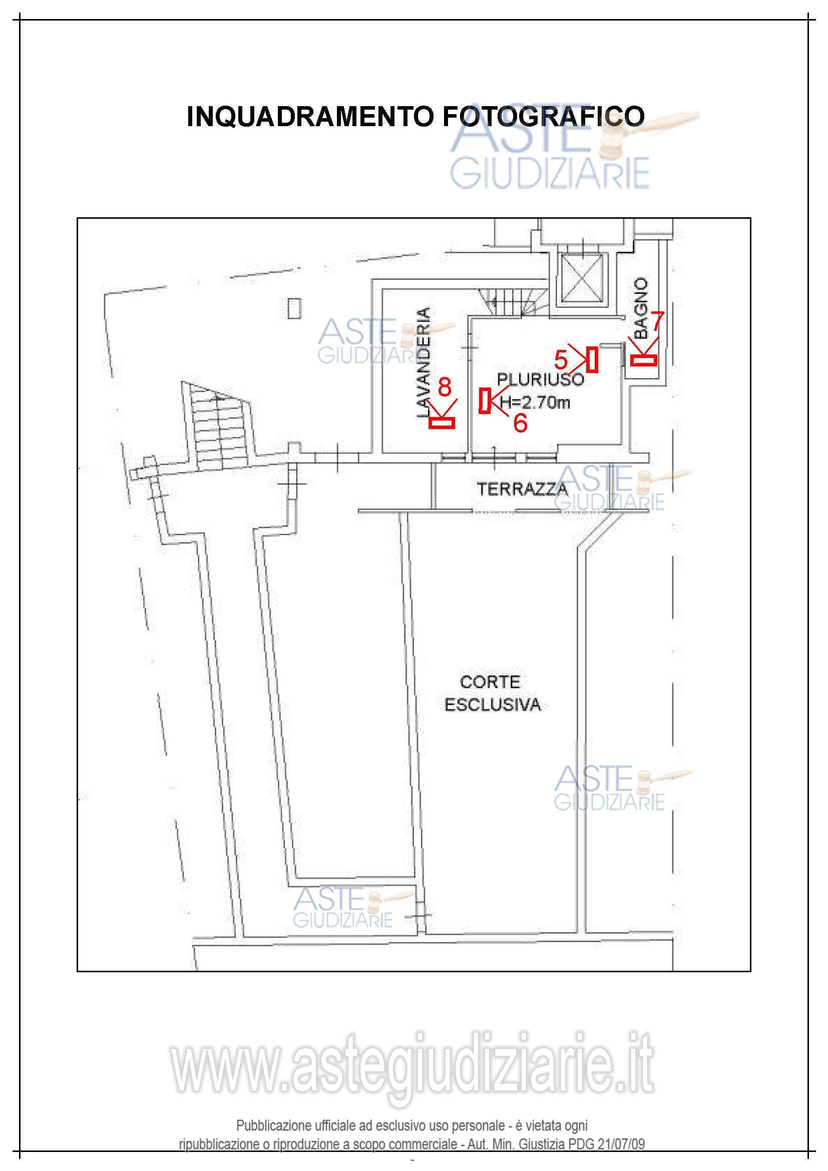
Vendita all'asta Senza incanto, con gara telematica asincrona - LOTTO 1: appartamento su due livelli (piano seminterrato - piano terra), cosi suddiviso: zona giorno: ingresso / soggiorno con angolo cottura, camera da letto singola e n. 1 bagno - zona notte: disimpegno, n.1 camera da letto matrimoniale con cabina armadio e secondo bagno, nonché terrazza con affaccio su corte esclusiva. L'immobile risulta dotato di impianto fotovoltaico condominiale potenza circa 8 KW a copertura dei parcheggi riservati ai condomini - il tutto meglio dettagliato nella perizia di stima. Prezzo base € 103.500,00 (offerta minima € 77.625,00). Data inizio operazioni di vendita: 05/11/2025 ore 17:15. Giudice Francesco Angelini. Professionista delegato alla vendita Avv. Silvia Giammarchi - Email "silvia.giammarchi@ordineavvocatiterni.it"; Cell. 3285477868; Tel. 0744404300. Rif. Tribunale di Terni - Contenzioso civile n. 2055/2024

Superficie 86,00 mq
Vani
Bagni
Piano 0

Tipologia di vendita Giudiziaria
Modalità di vendita Asincrona telematica
Termine presentazione offerte 04/11/2025 ore 11:00
Data e ora inizio gara 05/11/2025 ore 17:15
Codice ID astegiudiziarie.it 4335156
86,00
0
€ 103.500

Ti interessa questa vendita?

north_east

Clicca qui per essere indirizzato alla scheda sul sito di provenienza

Bene di astegiudiziarie.it