highlight_off
Riferimento annuncio 287984 info

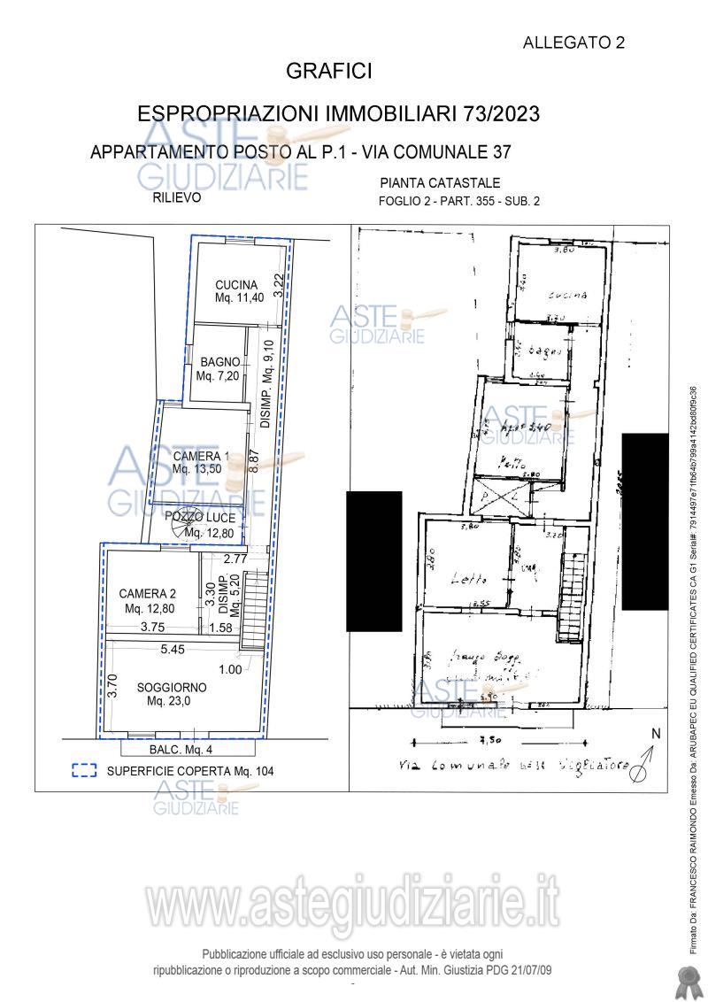
Appartamento Via Comunale 37, 98050 Terme Vigliatore (ME)

5,00
110,00
0
€ 15.787
Vendita all'asta Senza incanto, con gara telematica sincrona - LOTTO UNICO: Piena ed intera proprietà dell’appartamento posto al piano primo di un fabbricato a 2 elevazioni f.t. in muratura portante, della superficie commerciale di 109,68 mq (superficie coperta mq 110). Prezzo base € 15.787,00 (offerta minima € 11.840,25). Data vendita 24/10/2025 ore 15:30. Giudice Anna Smedile. Professionista delegato alla vendita Avv. Lorenzo Isaia - Email "loren3595@inwind.it". Custode Giudiziario Avv. Lorenzo Isaia - Email "loren3595@inwind.it"; Tel. 3283919155. Rif. Tribunale di Barcellona Pozzo di Gotto - Esecuzione immobiliare post legge 80 n. 73/2023

Superficie 110,00 mq
Vani 5,00
Bagni
Piano 0

Tipologia di vendita Giudiziaria
Modalità di vendita Sincrona telematica
Termine presentazione offerte 01/01/1900 ore 00:00
Data e ora inizio gara 24/10/2025 ore 15:30
Codice ID astegiudiziarie.it 4314637
5,00
110,00
0
€ 15.787

Ti interessa questa vendita?

north_east

Clicca qui per essere indirizzato alla scheda sul sito di provenienza

Bene di astegiudiziarie.it