highlight_off
Riferimento annuncio 327789 info

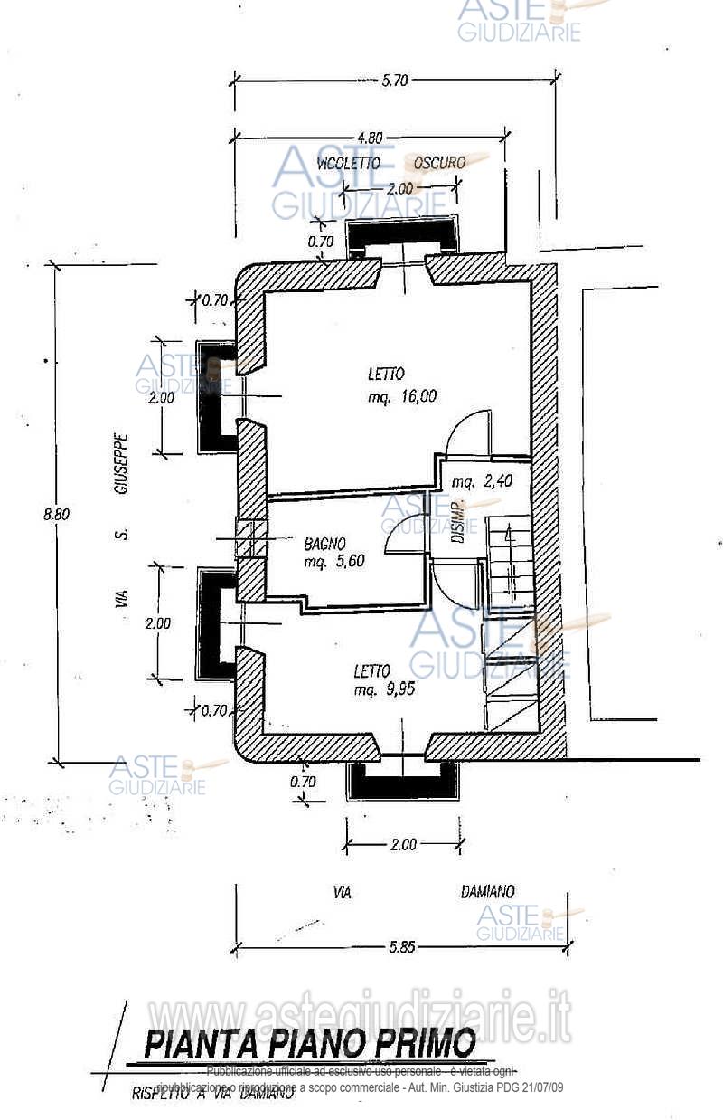
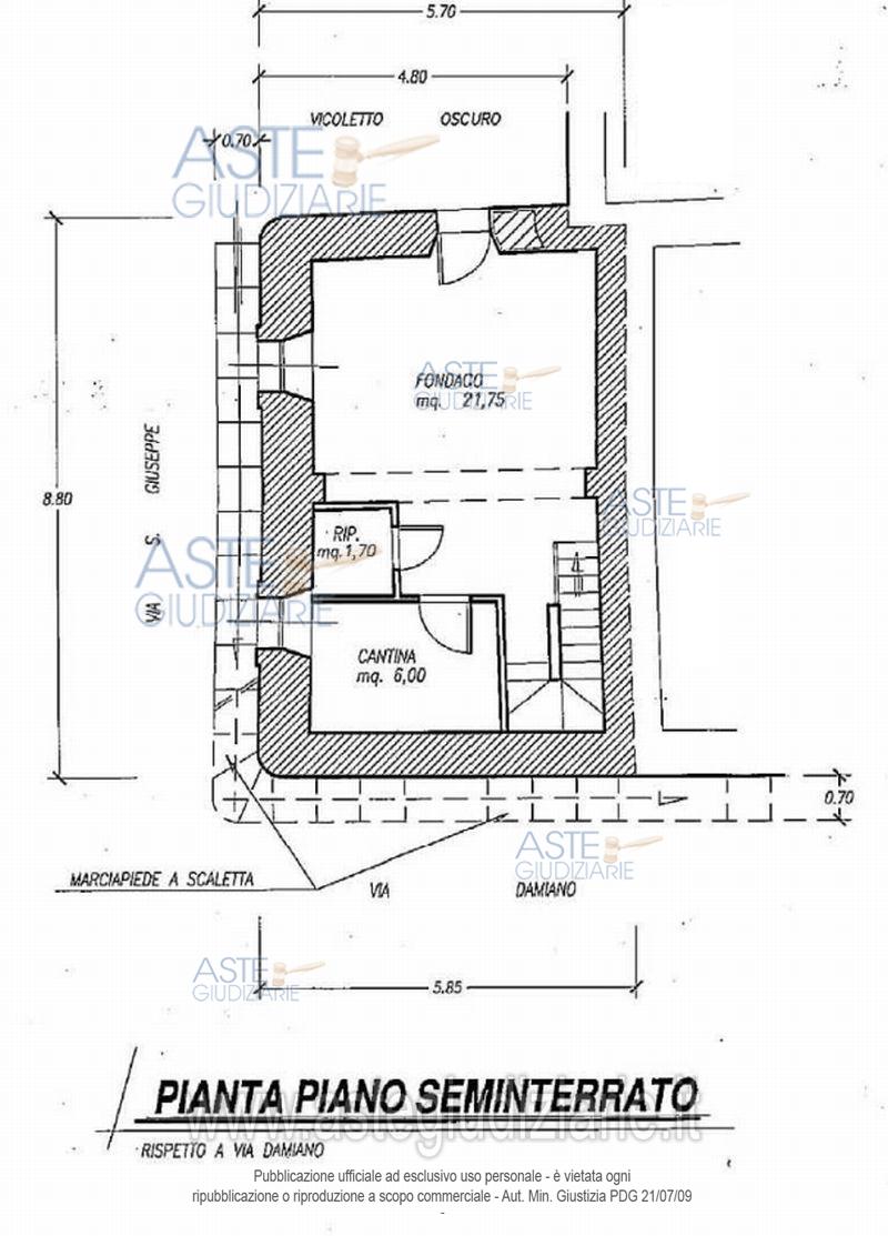
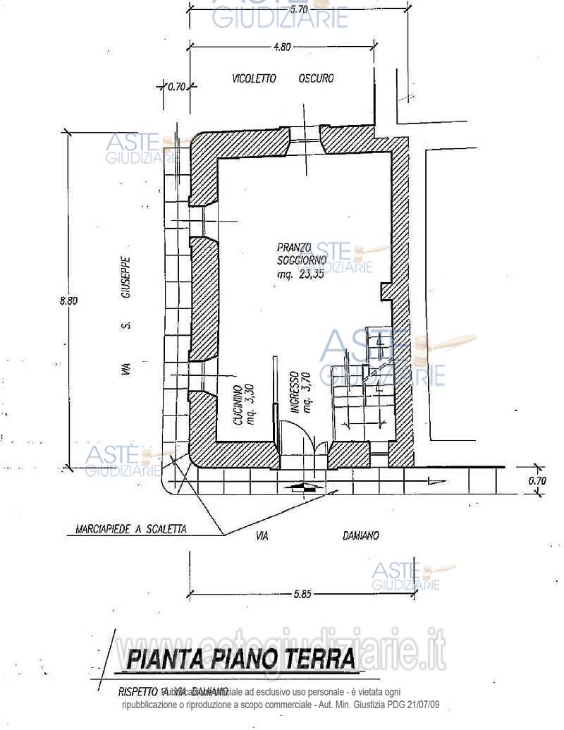
Appartamento Frazione Frondarola - Via Damiano, 4, 64100 Teramo (TE)

4,50
132,00
0
€ 31.641
Vendita all'asta Senza incanto - LOTTO 1: Abitazione composta da piano terra, piano primo e piano seminterrato. Prezzo base € 31.640,63 (offerta minima € 23.730,47). Data vendita 24/04/2026 ore 15:00. Giudice Dott. Ninetta D'ignazio. Professionista delegato alla vendita Avv. Annalisa Caschera - Email "avvocatocaschera@gmail.com"; Cell. 333/3242254. Custode Giudiziario Avv. Annalisa Caschera - Email "avvocatocaschera@gmail.com"; Cell. 333/3242254. Rif. Tribunale di Teramo - Esecuzione immobiliare n. 232/2009

Superficie 132,00 mq
Vani 4,50
Bagni
Piano 0

Tipologia di vendita Giudiziaria
Modalità di vendita Presso il venditore
Termine presentazione offerte 01/01/1900 ore 00:00
Data e ora inizio gara 24/04/2026 ore 15:00
Codice ID astegiudiziarie.it 248906
4,50
132,00
0
€ 31.641

Ti interessa questa vendita?

north_east

Clicca qui per essere indirizzato alla scheda sul sito di provenienza

Bene di astegiudiziarie.it