highlight_off
Riferimento annuncio 302501 info

Appartamento Viale Giovanni Bovio, 139, 64100 Teramo TE, Italia, 64100 Teramo (TE)

7,00
133,00
3
0
€ 67.000
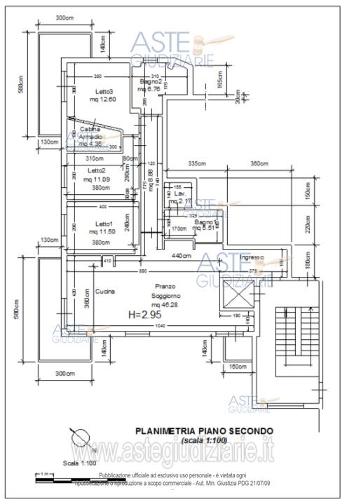
Vendita all'asta Senza incanto, con gara telematica asincrona - LOTTO UNICO: Bene n. 1 - Diritti pari ad 1/2 di intera proprietà di un appartamento per civile abitazione con annesso fondato adibito a cantina, ubicato in Teramo, viale Giovanni Bovio n. 139/A, distinto catastalmente al foglio 52, particella 620, sub 8; Bene n. 2 - Diritti pari ad 1/8 di intera proprietà di un garage, ubicato in Teramo, viale Giovanni Bovio n. 139/A, distinto catastalmente al foglio 52, particella 620, sub 3. Prezzo base € 67.000,00 (offerta minima € 50.250,00). Data inizio operazioni di vendita: 05/12/2025 ore 16:00. Giudice Dott. Ninetta D'ignazio. Professionista delegato alla vendita Dott. Paolo De Paoli - Email "paolo@studiodepaoli.biz"; Tel. 0861246424. Rif. Tribunale di Teramo - Liquidazione del patrimonio del debitore n. 1/2022

Superficie 133,00 mq
Vani 7,00
Bagni 3
Piano 0

Tipologia di vendita Giudiziaria
Modalità di vendita Asincrona telematica
Termine presentazione offerte 04/12/2025 ore 23:59
Data e ora inizio gara 05/12/2025 ore 16:00
Codice ID astegiudiziarie.it 4325806
7,00
133,00
3
0
€ 67.000

Ti interessa questa vendita?

north_east

Clicca qui per essere indirizzato alla scheda sul sito di provenienza

Bene di astegiudiziarie.it