highlight_off
Riferimento annuncio 313073 info

Appartamento Circonvallazione S. Francesco, 3, 07029 Tempio Pausania SS, Italia, 07029 Tempio Pausania (SS)

0
€ 132.800
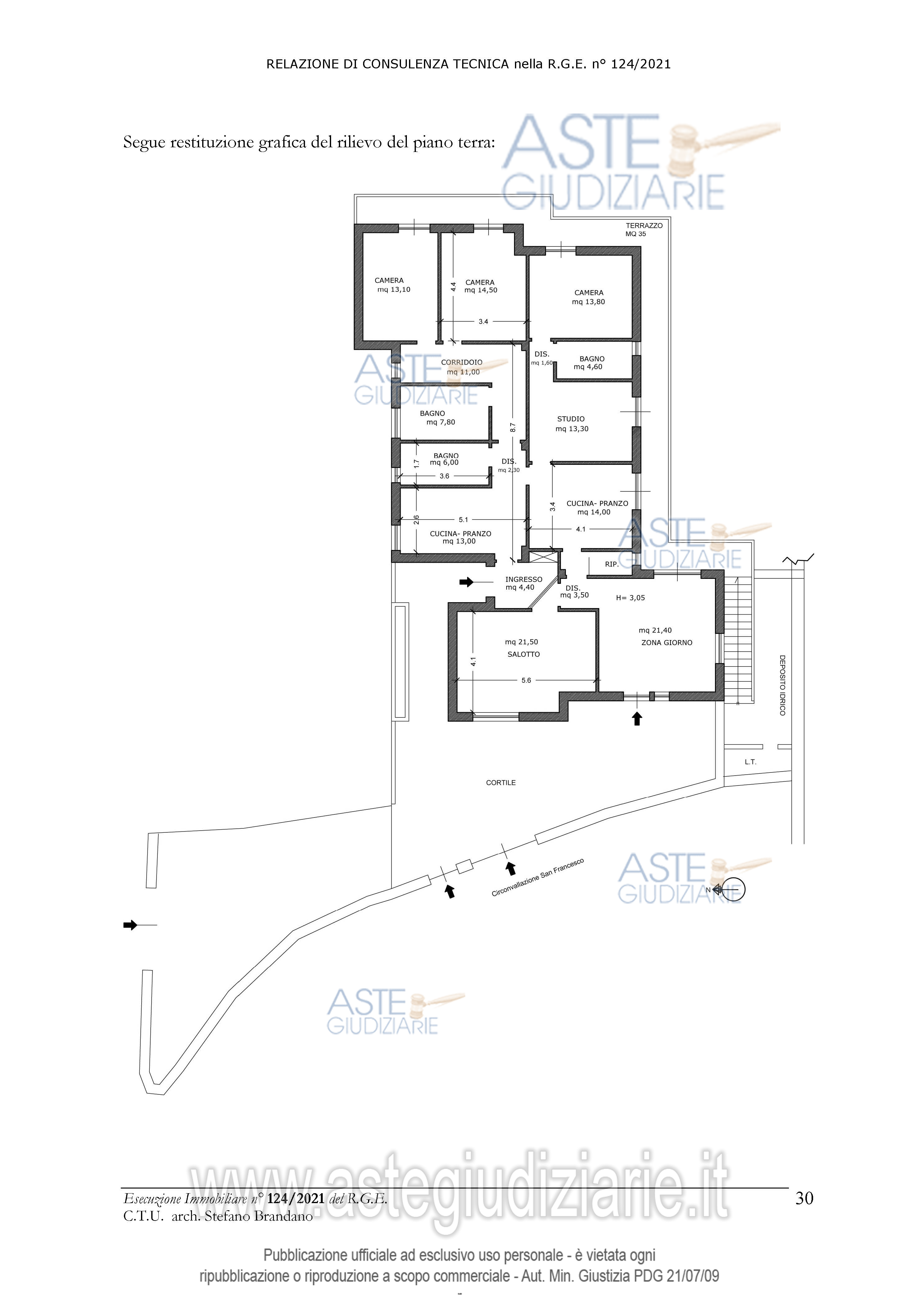
Vendita all'asta Senza incanto, con gara telematica asincrona - LOTTO UNICO: Quota di proprietà di 1/1 dell’unità immobiliare sita in Comune di Tempio Pausania (SS), Circonvallazione San Francesco n. 3, appartamento posto al piano terra rialzato in villino bifamiliare. Composto da: ingresso, salotto, zona giorno, tre camere da letto, tre bagni, studio, due vani distinti cucina/pranzo, ripostiglio/lavanderia, con annesso cortile pertinenziale. La superficie al lordo dei muri interni è di circa mq 173. Al NCEU F. 177 Part. 1174 Sub. 5, Cat. A/2, Classe 1, Consistenza 10 vani. Prezzo base € 132.800,00 (offerta minima € 99.600,00). Data inizio operazioni di vendita: 26/02/2026 ore 16:00. Giudice Dott. Federica Lunari. Professionista delegato alla vendita Avv. Mario Cossu - Email "avvmariocossu@gmail.com"; Cell. 3713933707; Tel. 078928652. Custode Giudiziario Ivg Tempio Pausania - Email "visite.ivgtempio@gmail.com"; Tel. 079630505. Rif. Tribunale di Tempio Pausania - Esecuzione immobiliare post legge 80 n. 124/2021

Superficie mq
Vani
Bagni
Piano 0

Tipologia di vendita Giudiziaria
Modalità di vendita Asincrona telematica
Termine presentazione offerte 01/01/1900 ore 00:00
Data e ora inizio gara 26/02/2026 ore 16:00
Codice ID astegiudiziarie.it 4333261
0
€ 132.800

Ti interessa questa vendita?

north_east

Clicca qui per essere indirizzato alla scheda sul sito di provenienza

Bene di astegiudiziarie.it