highlight_off
Riferimento annuncio 312666 info

Appartamento Traversa Via Demuro, 07029 Tempio Pausania SS, Italia, 07029 Tempio Pausania (SS)

42,00
1042,30
0
€ 614.000
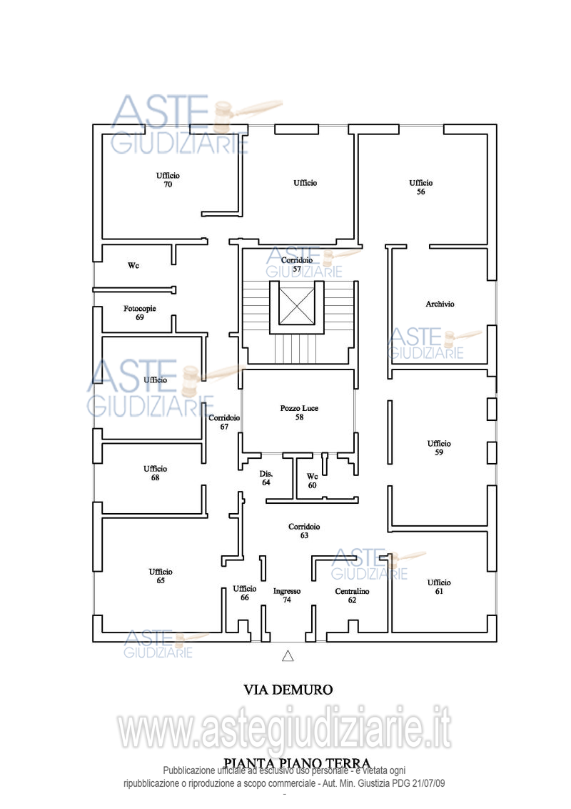
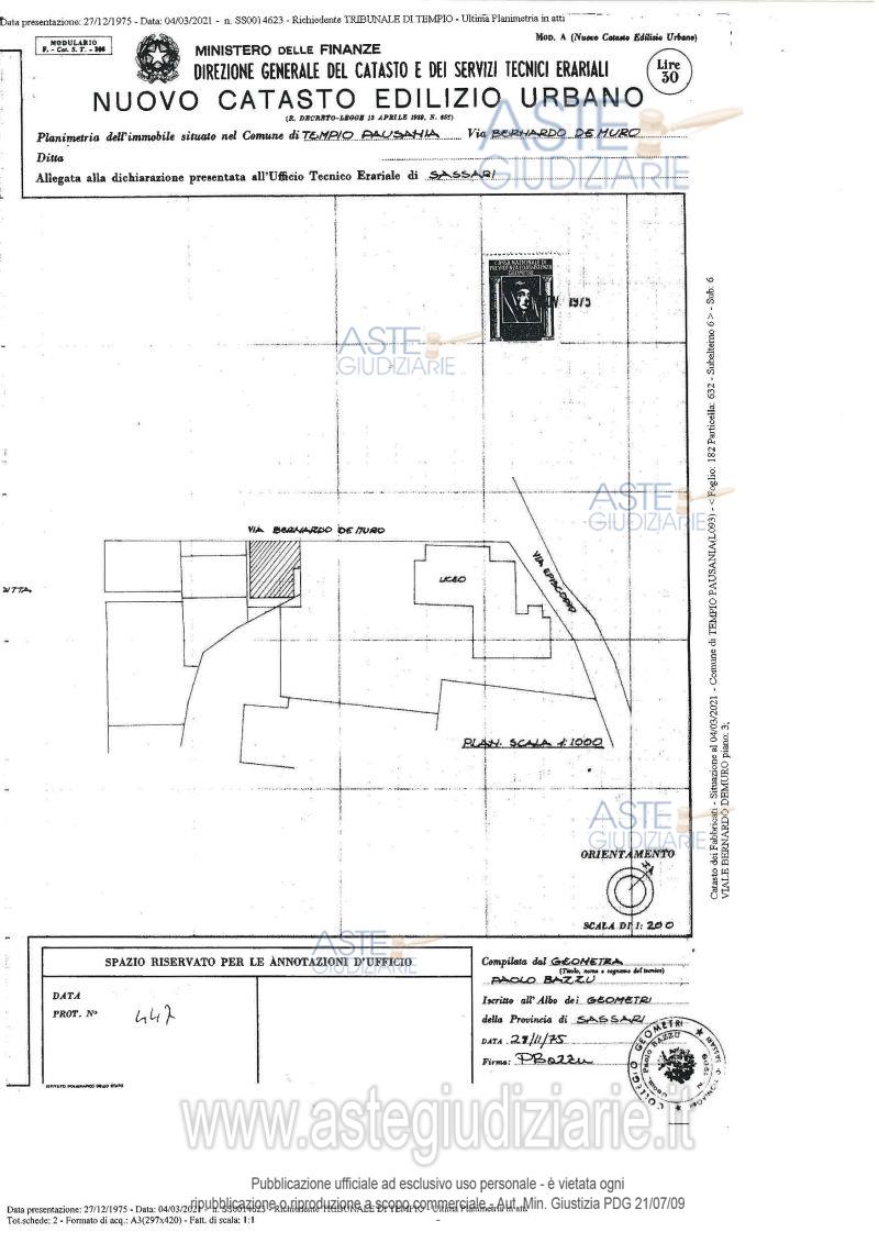
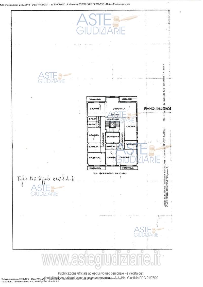
Vendita all'asta Senza incanto, con gara telematica asincrona - LOTTO 9: Intero edificio residenziale di 6 piani con ascensore (attualmente in uso come Commissariato di Pubblica Sicurezza) sito in Comune di Tempio Pausania (SS), via B. Demuro, composto da: P-1: autorimessa, magazzino, vani tecnici, corte; Pt: n. 12 vani, ingresso, n. 4 corridoi, n. 2 servizi igienici, pozzo luce; P1: n. 10 vani, n. 3 corridoi, n. 2 servizi igienici; P2: n. 10 vani, n. 4 corridoi, n. 5 servizi igienici; P3: n. 10 vani, n. Prezzo base € 614.000,00 (offerta minima € 460.500,00). Data inizio operazioni di vendita: 11/11/2025 ore 16:00. Professionista delegato alla vendita Dott. Alberto Ceresa - Email "concorsuale@ceresastudio.com"; Tel. 079230340. Custode Giudiziario Ivg Tempio Pausania - Email "visite.ivgtempio@gmail.com"; Tel. 079630505. Rif. Tribunale di Tempio Pausania - Esecuzione immobiliare post legge 80 n. 82/2014

Superficie 1042,30 mq
Vani 42,00
Bagni
Piano 0

Tipologia di vendita Giudiziaria
Modalità di vendita Asincrona telematica
Termine presentazione offerte 10/11/2025 ore 23:59
Data e ora inizio gara 11/11/2025 ore 16:00
Codice ID astegiudiziarie.it 4333275
42,00
1042,30
0
€ 614.000

Ti interessa questa vendita?

north_east

Clicca qui per essere indirizzato alla scheda sul sito di provenienza

Bene di astegiudiziarie.it