highlight_off
Riferimento annuncio 329671 info

Appartamento Via Giuseppe Mazzini, 116, 74123 Taranto TA, Italia, 74100 Taranto (TA)

5,50
68,00
0
€ 24.200
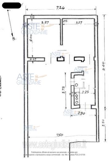
Vendita all'asta Senza incanto, con gara telematica asincrona - LOTTO UNICO: Piena proprietà dell’immobile avente una superficie lorda commerciale di circa mq.82,00, sitoal 3° piano del condominio di via Mazzini, 116, su unico livello. Prezzo base € 24.200,00 (offerta minima € 18.150,00). Data inizio operazioni di vendita: 16/06/2026 ore 17:00. Giudice: Dott. Andrea Paiano. Professionista delegato alla vendita: Avv. Alfonso Favatà. Custode Giudiziario: Avv. Alfonso Favatà - Email "avv.alfonsofavata@libero.it". Rif. Tribunale di Taranto - Espropriazione immobiliare (cartabia) n. 63/2025

Superficie 68,00 mq
Vani 5,50
Bagni
Piano 0

Tipologia di vendita Giudiziaria
Modalità di vendita Asincrona telematica
Termine presentazione offerte 15/06/2026 ore 12:00
Data e ora inizio gara 16/06/2026 ore 17:00
Codice ID astegiudiziarie.it 4347687
5,50
68,00
0
€ 24.200

Ti interessa questa vendita?

north_east

Clicca qui per essere indirizzato alla scheda sul sito di provenienza

Bene di astegiudiziarie.it