highlight_off
Riferimento annuncio 323628 info

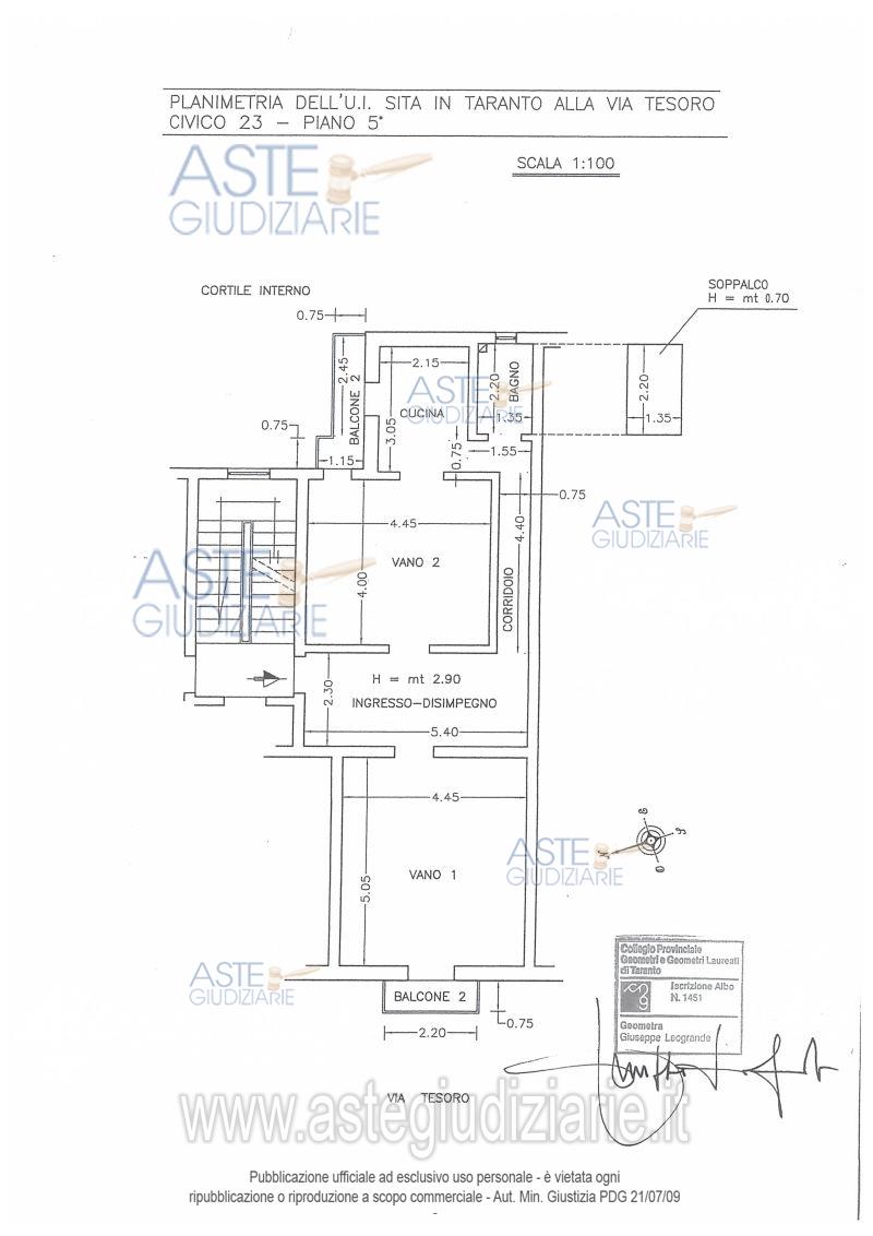
Appartamento Via Tesoro, 23, 74121 Taranto TA, Italia, 74100 Taranto (TA)

4,50
76,80
0
€ 25.500
Vendita all'asta Senza incanto, con gara telematica asincrona - LOTTO UNICO: Appartamento al piano quinto, composto da ingresso-disimpegno, due vani più cucina oltre a un bagno e accessorio corridoio. Prezzo base € 25.500,00 (offerta minima € 19.125,00). Data inizio operazioni di vendita: 09/06/2026 ore 16:00. Giudice Andrea Paiano. Professionista delegato alla vendita Avv. Alessandro D'ambrosio. Custode Giudiziario Avv. Alessandro D'ambrosio - Email "dambrosio.avv@libero.it". Rif. Tribunale di Taranto - Espropriazione immobiliare (cartabia) n. 150/2025

Superficie 76,80 mq
Vani 4,50
Bagni
Piano 0

Tipologia di vendita Giudiziaria
Modalità di vendita Asincrona telematica
Termine presentazione offerte 08/06/2026 ore 12:00
Data e ora inizio gara 09/06/2026 ore 16:00
Codice ID astegiudiziarie.it 4343055
4,50
76,80
0
€ 25.500

Ti interessa questa vendita?

north_east

Clicca qui per essere indirizzato alla scheda sul sito di provenienza

Bene di astegiudiziarie.it