highlight_off
Riferimento annuncio 284065 info

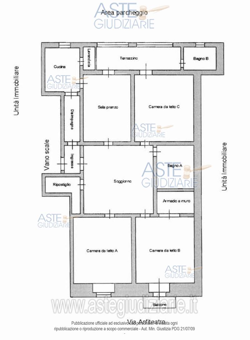
Appartamento Via Anfiteatro, 251, 74123 Taranto TA, Italia, 74100 Taranto (TA)

8,50
175,00
0
€ 179.834
Vendita in attesa dell'emissione del nuovo bando d'asta. LOTTO UNICO: Piena proprietà dell’appartamento con accesso a sx salendo le scale, costituito da ingresso – disimpegno con adiacente area di accesso alla cucina costituita da vicina area adibita a lavanderia, numero 3 (tre) camere da letto, numero 2 (due) bagni, ripostiglio e terrazzino chiuso per una superficie utile pari a circa 141,2 mq oltre ad una superficie scoperta di circa mq 2 sviluppata da balcone prospiciente la detta via Anfiteatro. Ultimo prezzo base € 179.834,06 (offerta minima € 134.875,55). Professionista delegato alla vendita Avv. Paolo Miraglia. Custode Giudiziario Ivg - Email "ivgta.visiteimmobili@gmail.com". Rif. Tribunale di Taranto - Espropriazione immobiliare (cartabia) n. 279/2023

Superficie 175,00 mq
Vani 8,50
Bagni
Piano 0

Tipologia di vendita Giudiziaria
Modalità di vendita Asincrona telematica
Termine presentazione offerte 01/01/1900 ore 00:00
Data e ora inizio gara 27/05/2025 ore 17:00
Codice ID astegiudiziarie.it 4311572
8,50
175,00
0
€ 179.834

Ti interessa questa vendita?

north_east

Clicca qui per essere indirizzato alla scheda sul sito di provenienza

Bene di astegiudiziarie.it