highlight_off
Riferimento annuncio 272099 info

Appartamento Via Scoglio del Tonno, 70, 74121 Taranto TA, Italia, 74100 Taranto (TA)

5,50
81,50
1
0
€ 87.500
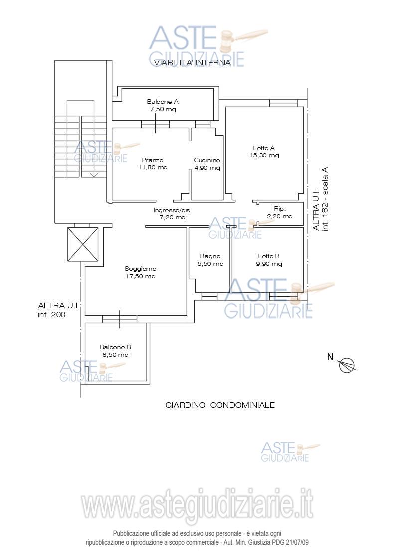
Vendita all'asta Senza incanto, con gara telematica asincrona - LOTTO UNICO: Piena proprietà di un appartamento al sesto piano dell’edificio residenziale n. 6 – scala B facente parte del complesso edilizio sito in Taranto (TA), alla Via Scoglio del Tonno n. 70, zona Taranto Due, censito in N.C.E.U. di detto Comune al fg. 265, p.lla 681, sub. 31, cat. A/3, classe 3, 5,5 vani, rendita euro 454,48. Prezzo base € 87.500,00 (offerta minima € 65.625,00). Data inizio operazioni di vendita: 14/01/2026 ore 16:00. Giudice Dott. Andrea Paiano. Professionista delegato alla vendita Avv. Saverio Di Fonzo. Custode Giudiziario Avv. Saverio Di Fonzo - Email "saveriodifonzo@libero.it"; Cell. 3382952352. Rif. Tribunale di Taranto - Esecuzione immobiliare post legge 80 n. 86/2023

Superficie 81,50 mq
Vani 5,50
Bagni 1
Piano 0

Tipologia di vendita Giudiziaria
Modalità di vendita Asincrona telematica
Termine presentazione offerte 13/01/2026 ore 12:00
Data e ora inizio gara 14/01/2026 ore 16:00
Codice ID astegiudiziarie.it 4302072
5,50
81,50
1
0
€ 87.500

Ti interessa questa vendita?

north_east

Clicca qui per essere indirizzato alla scheda sul sito di provenienza

Bene di astegiudiziarie.it