highlight_off
Riferimento annuncio 299955 info

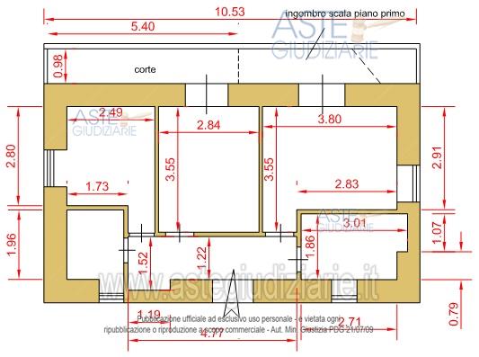
Appartamento Via Sfratati, 67069 Tagliacozzo (AQ)

4,00
63,00
0
€ 17.719
Vendita all'asta Senza incanto, con gara telematica asincrona - LOTTO UNICO: Appartamento. Prezzo base € 17.718,75 (offerta minima € 13.289,07). Data inizio operazioni di vendita: 11/12/2025 ore 17:30. Giudice Francesca Greco. Professionista delegato alla vendita Avv. Maria Pia Basile - Email "mariapiab72@libero.it". Custode Giudiziario Avv. Maria Pia Basile - Email "mariapiab72@libero.it". Rif. Tribunale di Avezzano - Espropriazione immobiliare (cartabia) n. 44/2023

Superficie 63,00 mq
Vani 4,00
Bagni
Piano 0

Tipologia di vendita Giudiziaria
Modalità di vendita Asincrona telematica
Termine presentazione offerte 01/01/1900 ore 00:00
Data e ora inizio gara 11/12/2025 ore 17:30
Codice ID astegiudiziarie.it 4323746
4,00
63,00
0
€ 17.719

Ti interessa questa vendita?

north_east

Clicca qui per essere indirizzato alla scheda sul sito di provenienza

Bene di astegiudiziarie.it