highlight_off
Riferimento annuncio 313372 info

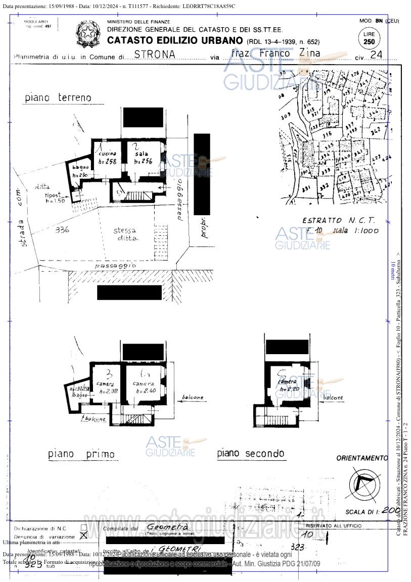
Appartamento Frazione Franco Zina 24, 13823 Strona (BI)

6,00
110,00
2
0
€ 39.000
Vendita all'asta Senza incanto, con gara telematica asincrona - LOTTO 1: Fabbricato di civile abitazione elevato a tre piani fuori terra il tutto entrostante porzione di area contraddistinta al foglio 10 particella 323 del Catasto Terreni, nonché appezzamento di terreno. Prezzo base € 39.000,00 (offerta minima € 29.250,00). Data inizio operazioni di vendita: 11/11/2025 ore 15:30. Giudice Dott. Emanuele Migliore. Professionista delegato alla vendita Avv. Carla Montarolo. Custode Giudiziario Avv. Carla Montarolo - Email "avvocatomontarolo@gmail.com"; Tel. 0152520367. Rif. Tribunale di Biella - Espropriazione immobiliare (cartabia) n. 88/2024

Superficie 110,00 mq
Vani 6,00
Bagni 2
Piano 0

Tipologia di vendita Giudiziaria
Modalità di vendita Asincrona telematica
Termine presentazione offerte 10/11/2025 ore 13:00
Data e ora inizio gara 11/11/2025 ore 15:30
Codice ID astegiudiziarie.it 4334454
6,00
110,00
2
0
€ 39.000

Ti interessa questa vendita?

north_east

Clicca qui per essere indirizzato alla scheda sul sito di provenienza

Bene di astegiudiziarie.it