highlight_off
Riferimento annuncio 319450 info

Appartamento Via Montesecco, 65010 Spoltore PE, Italia, 65010 Spoltore (PE)

8,50
122,88
3
0
€ 141.960
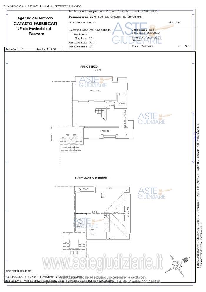
Vendita all'asta Senza incanto, con gara telematica asincrona - LOTTO 1: Bene 1) Appartamento del tipo duplex che si sviluppa su due livelli (3° piano e 4° piano sottotetto), collegati internamente da una scala; n. 3 camere da letto; n. 3 bagni. Bene 2) Garage al piano terra.Bene 3) Cantina al piano quarto. Prezzo base € 141.959,76 (offerta minima € 106.469,82). Data inizio operazioni di vendita: 11/02/2026 ore 10:00. Professionista delegato alla vendita Dott. Mario Marzovilla - Email "mmarzovilla@studiodimajo.it". Custode Giudiziario Dott. Mario Marzovilla - Email "mmarzovilla@studiodimajo.it". Rif. Tribunale di Pescara - Espropriazione immobiliare (cartabia) n. 20/2025

Superficie 122,88 mq
Vani 8,50
Bagni 3
Piano 0

Tipologia di vendita Giudiziaria
Modalità di vendita Asincrona telematica
Termine presentazione offerte 01/01/1900 ore 00:00
Data e ora inizio gara 11/02/2026 ore 10:00
Codice ID astegiudiziarie.it 4339516
8,50
122,88
3
0
€ 141.960

Ti interessa questa vendita?

north_east

Clicca qui per essere indirizzato alla scheda sul sito di provenienza

Bene di astegiudiziarie.it