highlight_off
Riferimento annuncio 276451 info

Appartamento Via Maiella, 65010 Spoltore PE, Italia, 65010 Spoltore (PE)

6,50
16579,30
0
€ 1.119.249
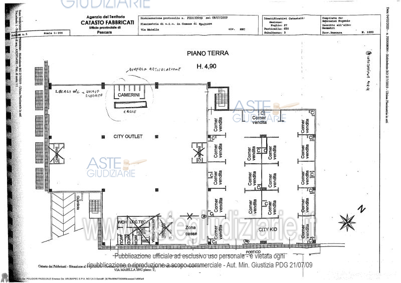
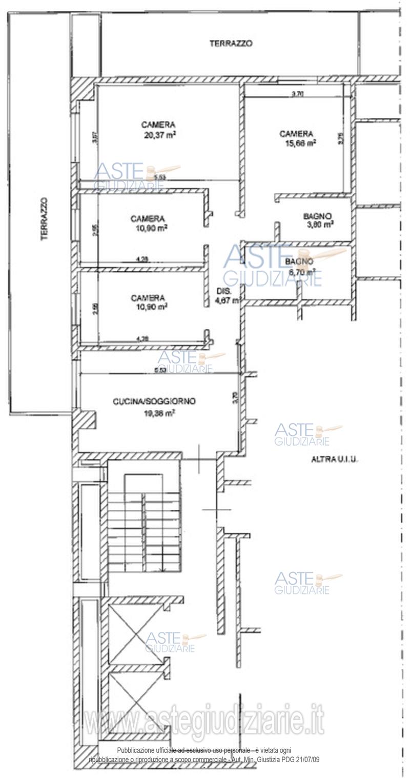
Vendita all'asta Senza incanto, con gara telematica asincrona - LOTTO UNICO: Complesso immobiliare costruito per esigenze di attività commerciale con parcheggio sotterraneo. Prezzo base € 1.119.248,51 (offerta minima € 839.436,38). Data inizio operazioni di vendita: 21/04/2026 ore 09:15. Professionista delegato alla vendita Dott. Ercole Di Martino. Custode Giudiziario Dott. Ercole Di Martino - Email "ercoledimartino@gmail.com"; Cell. 347-8510044. Rif. Tribunale di Pescara - Esecuzione immobiliare post legge 80 n. 217/2019

Superficie 16579,30 mq
Vani 6,50
Bagni
Piano 0

Tipologia di vendita Giudiziaria
Modalità di vendita Asincrona telematica
Termine presentazione offerte 20/04/2026 ore 12:00
Data e ora inizio gara 21/04/2026 ore 09:15
Codice ID astegiudiziarie.it 4208406
6,50
16579,30
0
€ 1.119.249

Ti interessa questa vendita?

north_east

Clicca qui per essere indirizzato alla scheda sul sito di provenienza

Bene di astegiudiziarie.it