highlight_off
Riferimento annuncio 316136 info

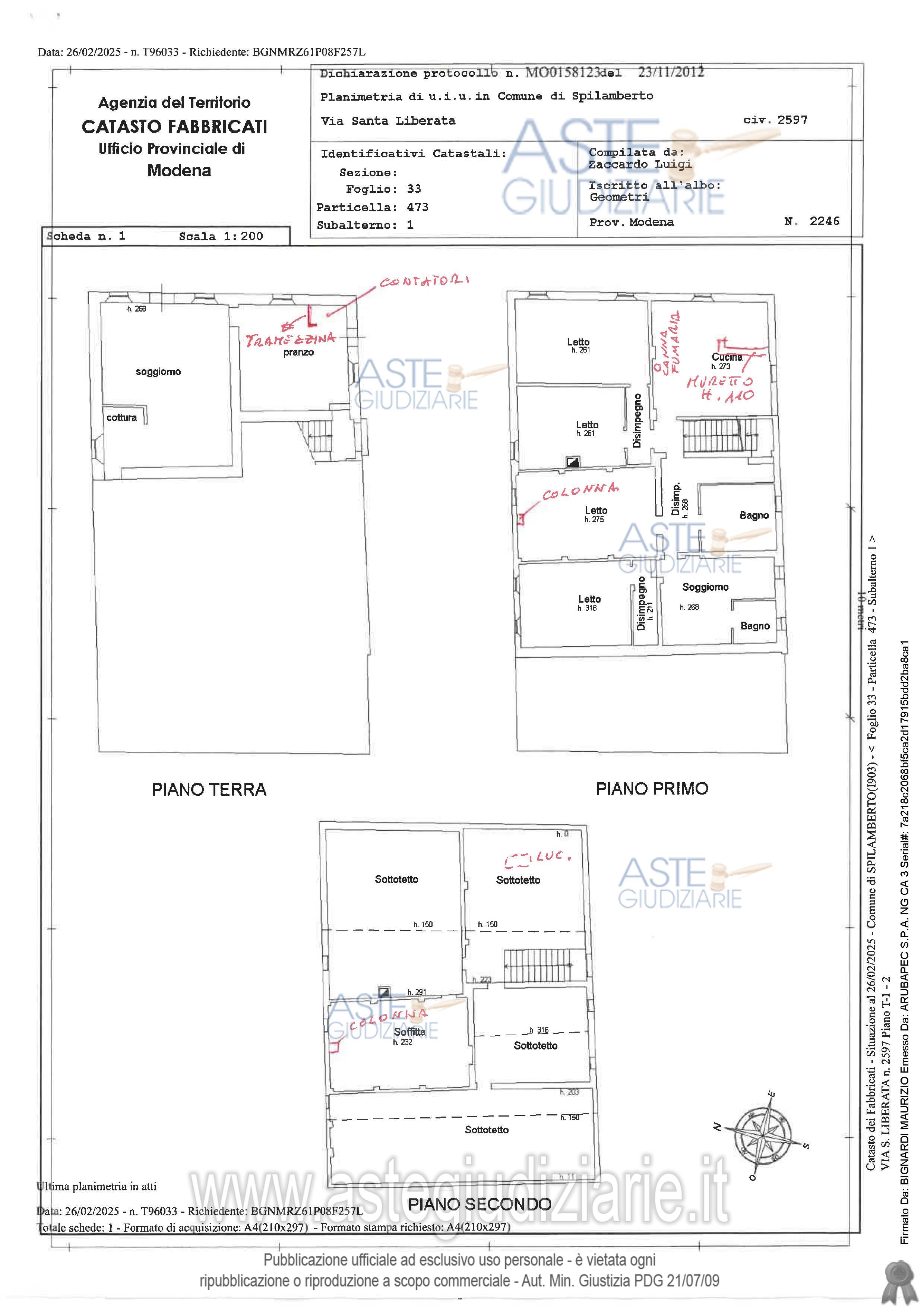
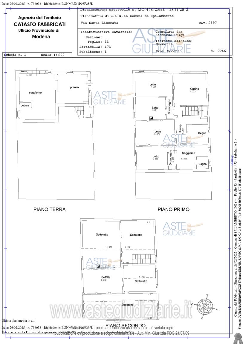
Appartamento Via Santa Liberata 2597, 41057 Spilamberto (MO)

14,50
44815,75
0
€ 553.500
Vendita all'asta Senza incanto, con gara telematica asincrona - LOTTO UNICO: piena proprietà su appezzamenti di terreno e fabbricati con relative aree di pertinenze esclusive siti in Spilamberto (MO), via Santa Liberata. Prezzo base € 553.500,00 (offerta minima € 415.125,00). Data inizio operazioni di vendita: 10/03/2026 ore 11:00. Professionista delegato alla vendita Avv. Alberto Iacoli - Email "avvalbertoiacoli@libero.it"; Cell. 3356916023; Tel. 059224631. Custode Giudiziario Alex Mannelli - Email "VISITEIMMOBILI@IVGMODENA.IT"; Tel. 059847301. Rif. Tribunale di Modena - Espropriazione immobiliare (cartabia) n. 50/2024

Superficie 44815,75 mq
Vani 14,50
Bagni
Piano 0

Tipologia di vendita Giudiziaria
Modalità di vendita Asincrona telematica
Termine presentazione offerte 01/01/1900 ore 00:00
Data e ora inizio gara 10/03/2026 ore 11:00
Codice ID astegiudiziarie.it 4336859
14,50
44815,75
0
€ 553.500

Ti interessa questa vendita?

north_east

Clicca qui per essere indirizzato alla scheda sul sito di provenienza

Bene di astegiudiziarie.it