highlight_off
Riferimento annuncio 310584 info

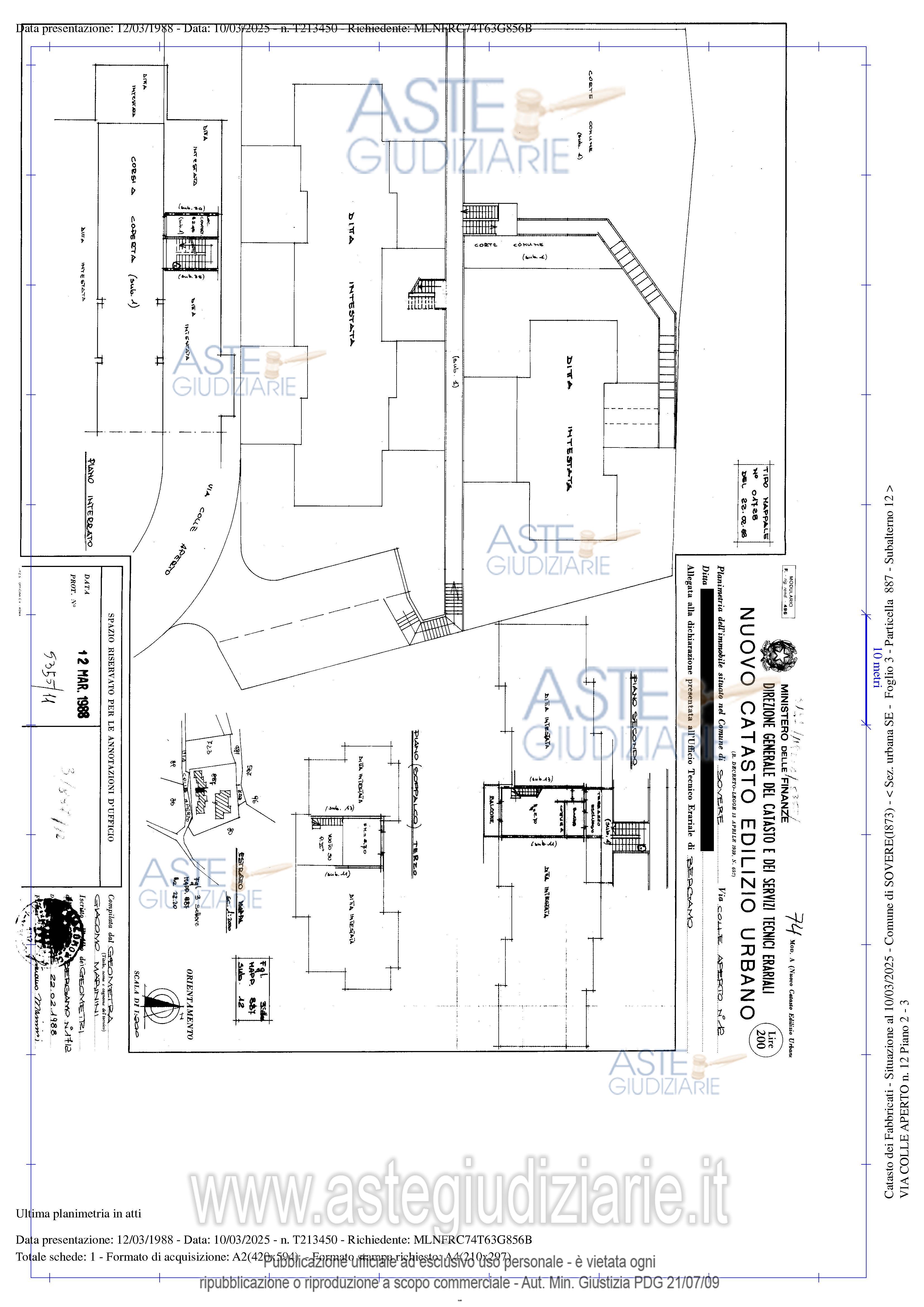
Appartamento accesso da via Colle Aperto n. 12, 24060 Sovere (BG)

2
€ 75.150
Vendita in attesa dell'emissione del nuovo bando d'asta. LOTTO UNICO: Appartamento al piano secondo, nel complesso immobiliare denominato "Residence Colle Aperto", composto da ingresso, soggiorno con angolo cottura, bagno, terrazzo esclusivo dal quale si accede all'appartamento ed un balcone, con annesso il sovrastante soppalco interno composto da un vano, collegato con scala interna esclusiva. Autorimessa al piano interrato, con ripostiglio della consistenza catastale di mq 28, pertinenziale all'appartamento. Ultimo prezzo base € 75.150,00 (offerta minima € 56.363,00). Giudice Dott. Luca Fuzio. Professionista delegato alla vendita Not. Filippo Calarco - Email "assnotbergamo@notariato.it"; Tel. 035219426. Custode Giudiziario Istituto Vendite Giudiziarie Di Bergamo - Email "immobiliare@ivgbergamo.it"; Tel. 0350763005. Rif. Tribunale di Bergamo - Espropriazione immobiliare (cartabia) n. 476/2024

Superficie mq
Vani
Bagni
Piano 2

Tipologia di vendita Giudiziaria
Modalità di vendita Asincrona telematica
Termine presentazione offerte 01/01/1900 ore 00:00
Data e ora inizio gara 30/09/2025 ore 11:00
Codice ID astegiudiziarie.it 4332119
2
€ 75.150

Ti interessa questa vendita?

north_east

Clicca qui per essere indirizzato alla scheda sul sito di provenienza

Bene di astegiudiziarie.it