Riferimento annuncio 307403
        
    
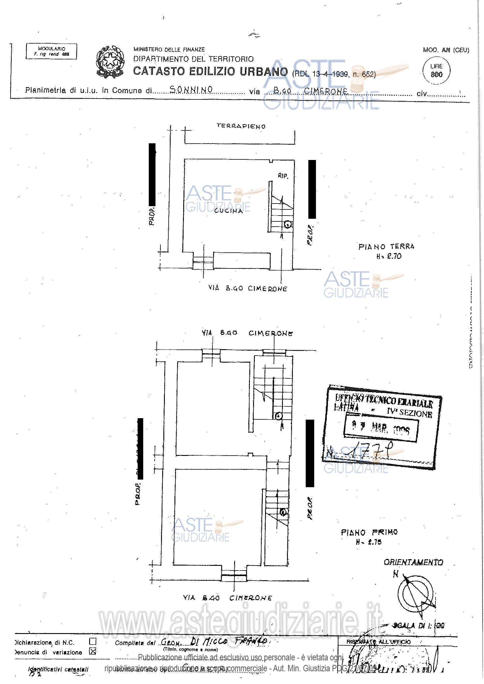
    Appartamento VIA DELLA SALVIA N. 3 EX VIA BORGO CIMERONE N. 28, 04010 Sonnino (LT)
                
                8,00
            
            
                
                188,00
            
            
                
                0
            
        
€ 17.868    
                Vendita all'asta Senza incanto, con gara telematica asincrona - LOTTO UNICO:  IMMOBILE AD USO ABITAZIONE SITO NEL COMUNE DI SONNINO VIA DELLA SALVIA N. 3 EX VIA BORGO CIMERONE N. 28 DISTRIBUITO SU 4 PIANI DAL PIANO TERRA AL TERZO COMPRESO PER UN TOTALE DI 8 VANI CATASTALI. Prezzo base € 17.868,00 (offerta minima € 13.401,00). Data inizio operazioni di vendita: 18/11/2025 ore 11:00. Giudice Elena Saviano. Professionista delegato alla vendita Dott. Nora Cacciotti - Email "nora.cacciotti@gmail.com"; Tel. 0773694003. Custode Giudiziario  Dott. Nora Cacciotti - Email "nora.cacciotti@gmail.com"; Tel. 0773694003.  Rif. Tribunale di Latina - Esecuzione immobiliare post legge 80 n. 350/2011
            
   
| Superficie | 188,00 mq | 
|---|---|
| Vani | 8,00 | 
| Bagni | |
| Piano | 0 | 
| Tipologia di vendita | Giudiziaria | 
|---|---|
| Modalità di vendita | Asincrona telematica | 
| Termine presentazione offerte | 01/01/1900 ore 00:00 | 
| Data e ora inizio gara | 18/11/2025 ore 11:00 |