highlight_off
Riferimento annuncio 321061 info

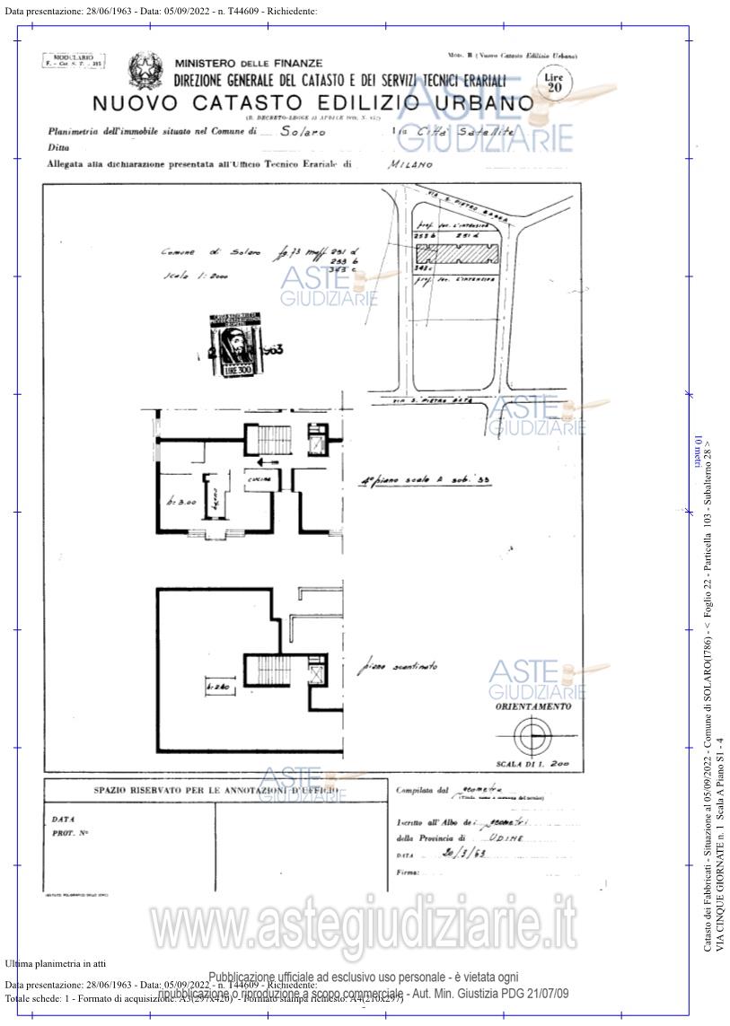
Appartamento Via Cinque Giornate 1, 20033 Solaro (MI)

51,48
4
€ 38.500
Vendita all'asta Senza incanto, con gara telematica sincrona - LOTTO 1: Appartamento 51,48 mq P. 4 bagno, cucina, camera oltre cantina. PER L’ASSISTENZA ALLA PARTECIPAZIONE ALL’ASTA DEI BENI IMMOBILI E MOBILI CI SI PUO’ RIVOLGERE ALL’I.V.G. DI MONZA. IL TRIBUNALE DI MONZA NON HA CONFERITO ALCUN INCARICO A INTERMEDIARI/ AGENZIE IMMOBILIARI PER LA PUBBLICITÀ GIUDIZIARIA E L’ASSISTENZA ALLA PARTECIPAZIONE ALL’ASTA. Prezzo base € 38.500,00 (offerta minima € 29.000,00). Data vendita 05/02/2026 ore 09:30. Giudice Patrizia Fantin. Professionista delegato alla vendita Dott. Maria Ester Palermo - Email "studiopalermo@studioesterpalermo.it"; Tel. 0392301036. Custode Giudiziario Dott. Maria Ester Palermo - Email "studiopalermo@studioesterpalermo.it"; Tel. 0392301036. Rif. Tribunale di Monza - Esecuzione immobiliare post legge 80 n. 123/2022

Superficie 51,48 mq
Vani
Bagni
Piano 4

Tipologia di vendita Giudiziaria
Modalità di vendita Sincrona telematica
Termine presentazione offerte 03/02/2026 ore 13:00
Data e ora inizio gara 05/02/2026 ore 09:30
Codice ID astegiudiziarie.it 4340685
51,48
4
€ 38.500

Ti interessa questa vendita?

north_east

Clicca qui per essere indirizzato alla scheda sul sito di provenienza

Bene di astegiudiziarie.it