highlight_off
Riferimento annuncio 324060 info

Appartamento VIA MONTI IBLEI N.1, 96100 Siracusa (SR)

0
€ 48.270
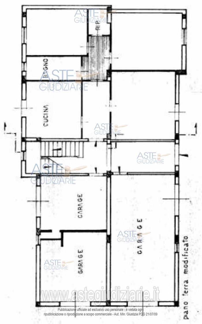
Vendita all'asta Senza incanto, con gara telematica sincrona mista - LOTTO UNICO: Piena proprietà dell'appartamento sito in Siracusa, Via Monti Iblei n. 1 (riportato al catasto via Monti Nebrodi n. 8, piano 2, int. 7), censita nel NCEU del Comune di Siracusa alla sezione 001, foglio 26, p.lla 601, sub. 8, cat. A/3, Cl. 2, consitenza 4,5 vani, superficie mq 84, 82 mq di area scoperta (gran parte in proprietà comune), rendita castatale € 348,61. Prezzo base € 48.270,00 (offerta minima € 36.202,50). Data vendita 24/06/2026 ore 11:00. Professionista delegato alla vendita: Avv. Stefania Sapuppo - Email "studiolegalesapuppo@gmail.com"; Tel. 0931/853937; Cell. 349/3158082. Rif. Tribunale di Siracusa - Contenzioso civile n. 405/2020

Superficie mq
Vani
Bagni
Piano 0

Tipologia di vendita Giudiziaria
Modalità di vendita Sincrona mista
Termine presentazione offerte 23/06/2026 ore 12:00
Data e ora inizio gara 24/06/2026 ore 11:00
Codice ID astegiudiziarie.it 4343217
0
€ 48.270

Ti interessa questa vendita?

north_east

Clicca qui per essere indirizzato alla scheda sul sito di provenienza

Bene di astegiudiziarie.it