highlight_off
Riferimento annuncio 318695 info

Appartamento Via Alceo, n. 4 - 96100 Siracusa SR, Italia, 96100 Siracusa (SR)

3,00
0
€ 57.000
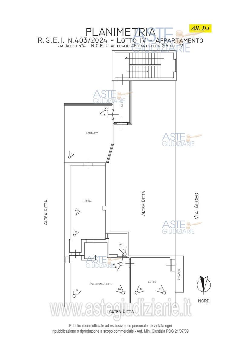
Vendita all'asta Senza incanto, con gara telematica sincrona mista - LOTTO 4: Piena proprietà dell’appartamento sito a Siracusa (SR), Via Alceo n. 4 censito al N.C.E.U. del Comune di Siracusa al foglio 45, particella 216, sub 23, categoria A/3, classe 3, consistenza 3 vani, rendita € 278,89. Prezzo base € 57.000,00 (offerta minima € 42.750,00). Data vendita 21/01/2026 ore 09:00. Giudice Concita Cultrera. Professionista delegato alla vendita Dott. Alessandro Abbruzzo - Email "alessandro.abbruzzo@gmail.com"; Tel. 0931464088. Custode Giudiziario Dott. Alessandro Abbruzzo - Email "alessandro.abbruzzo@gmail.com"; Tel. 0931464088. Rif. Tribunale di Siracusa - Esecuzione immobiliare post legge 80 n. 403/2024

Superficie mq
Vani 3,00
Bagni
Piano 0

Tipologia di vendita Giudiziaria
Modalità di vendita Sincrona mista
Termine presentazione offerte 01/01/1900 ore 00:00
Data e ora inizio gara 21/01/2026 ore 09:00
Codice ID astegiudiziarie.it 4338747
3,00
0
€ 57.000

Ti interessa questa vendita?

north_east

Clicca qui per essere indirizzato alla scheda sul sito di provenienza

Bene di astegiudiziarie.it