highlight_off
Riferimento annuncio 304280 info

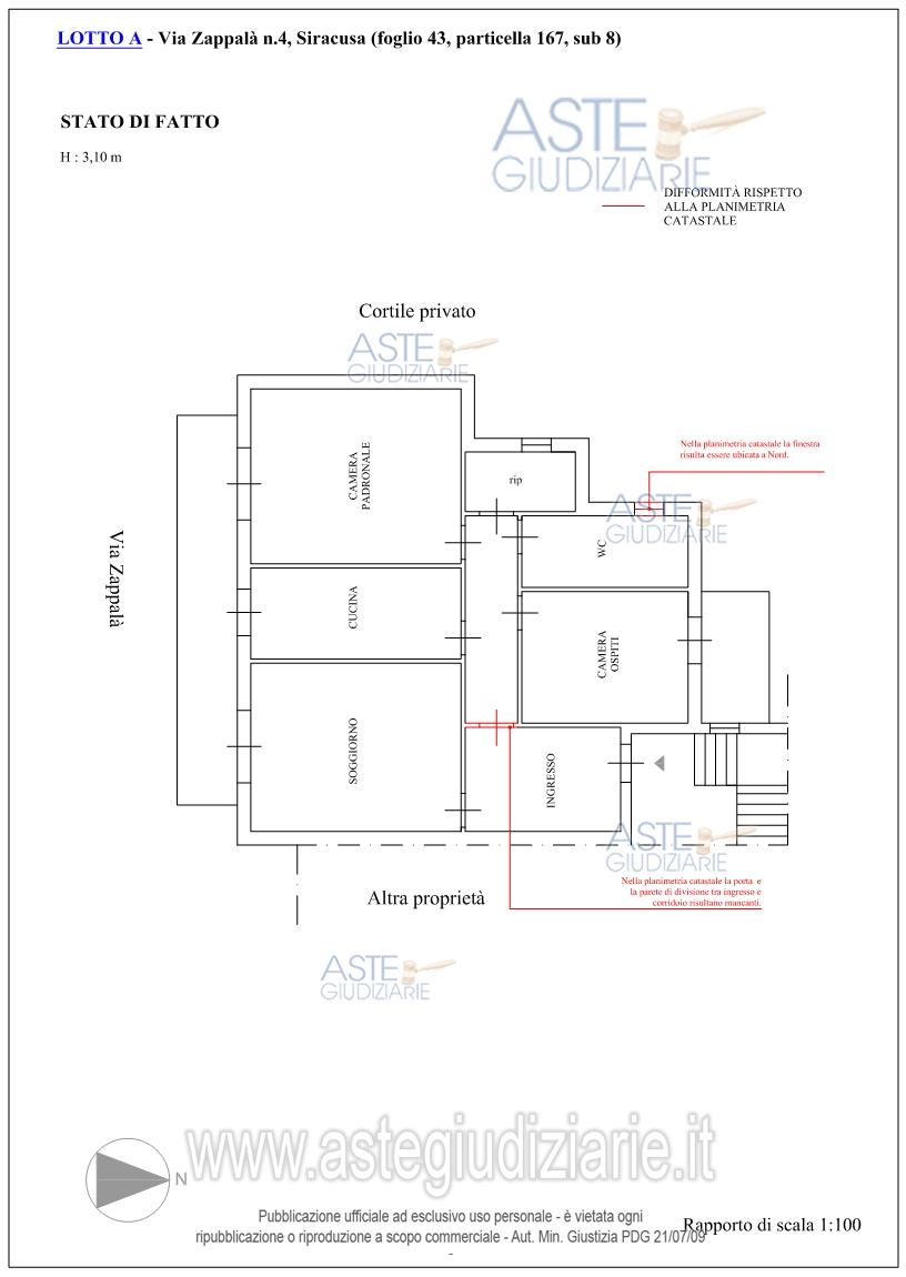
Appartamento VIA ZAPPALA' 4, 96100 Siracusa (SR)

0
€ 56.250
Vendita all'asta Senza incanto, con gara telematica sincrona mista - LOTTO UNICO: Appartamento in Siracusa Via Zappalà,4 , scala A piano primo Int. 1 al NCEU al foglio 43 p.lla 167 sub 8, di 105 mq. Cat. A/3. Prezzo base € 56.250,00 (offerta minima € 42.187,50). Data vendita 11/12/2025 ore 11:00. Professionista delegato alla vendita Avv. Antonio Messina - Email "antoniomessina097@gmail.com"; Cell. 3397961479; Tel. 093168236. Custode Giudiziario Avv. Antonio Messina - Email "antoniomessina097@gmail.com"; Cell. 3397961479; Tel. 093168236. Rif. Tribunale di Siracusa - Esecuzione immobiliare post legge 80 n. 70/2023

Superficie mq
Vani
Bagni
Piano 0

Tipologia di vendita Giudiziaria
Modalità di vendita Sincrona mista
Termine presentazione offerte 01/01/1900 ore 00:00
Data e ora inizio gara 11/12/2025 ore 11:00
Codice ID astegiudiziarie.it 4327287
0
€ 56.250

Ti interessa questa vendita?

north_east

Clicca qui per essere indirizzato alla scheda sul sito di provenienza

Bene di astegiudiziarie.it