highlight_off
Riferimento annuncio 300109 info

Appartamento Loc. Minatoriu Intro Adde, 08029 Siniscola (NU)

5,00
120,42
0
€ 112.500
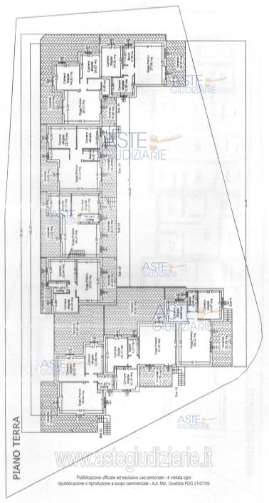
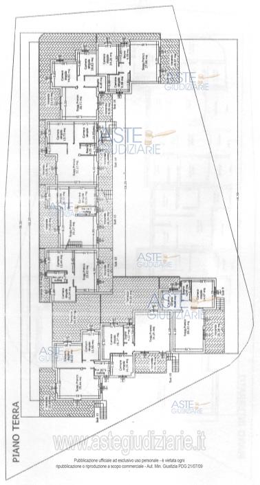
Vendita all'asta Senza incanto, con gara telematica asincrona - LOTTO 2: Lotto 2: Appartamento ubicato a Siniscola (NU) - Loc. Minatoriu Intro Adde, piano T, Identificato al catasto Fabbricati - Fg. 20, Part. 2034, Sub. 21, Categoria A3. Prezzo base € 112.500,00 (offerta minima € 84.375,00). Data inizio operazioni di vendita: 27/05/2026 ore 12:00. Professionista delegato alla vendita: Avv. Marcello Antonio Costaggiu - Email "marcostaggiu@gmail.com"; Tel. 0784/31311; Cell. 329/9789799. Custode Giudiziario: Ivg Tempio Pausania-Nuoro - Email "visite.ivgnuoro@gmail.com"; Tel. 079/630505. Rif. Tribunale di Nuoro - Espropriazione immobiliare (cartabia) n. 16/2023

Superficie 120,42 mq
Vani 5,00
Bagni
Piano 0

Tipologia di vendita Giudiziaria
Modalità di vendita Asincrona telematica
Termine presentazione offerte 26/05/2026 ore 12:00
Data e ora inizio gara 27/05/2026 ore 12:00
Codice ID astegiudiziarie.it 4323847
5,00
120,42
0
€ 112.500

Ti interessa questa vendita?

north_east

Clicca qui per essere indirizzato alla scheda sul sito di provenienza

Bene di astegiudiziarie.it