highlight_off
Riferimento annuncio 294274 info

Appartamento Corso Repubblica, 249, 09010 Siliqua SU, Italia, 09010 Siliqua (SU)

8,00
190,00
0
€ 37.600
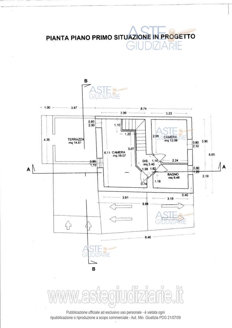
Vendita all'asta Senza incanto - LOTTO UNICO: Piena proprietà del fabbricato ad uso civile abitazione, disposto due livelli, avente accesso dal Corso Repubblica n. 249, costituito di: soggiorno, sala da pranzo, cucina, un bagno, servizio e cortile al piano terra; due camere e un disimpegno al piano primo; completa la consistenza un locale ad uso deposito ubicato nel cortile al piano terra. Prezzo base € 37.600,00 (offerta minima € 28.200,00). Data vendita 18/11/2025 ore 09:00. Giudice Dott. Vincenzo Aquaro. Professionista delegato alla vendita Not. Massimiliano Vadilonga - Email "ufficiouniconotai@pec.it"; Tel. 07060222574. Rif. Tribunale di Cagliari - Contenzioso civile n. 8440/2014

Superficie 190,00 mq
Vani 8,00
Bagni
Piano 0

Tipologia di vendita Giudiziaria
Modalità di vendita Presso il venditore
Termine presentazione offerte 01/01/1900 ore 00:00
Data e ora inizio gara 18/11/2025 ore 09:00
Codice ID astegiudiziarie.it 396867
8,00
190,00
0
€ 37.600

Ti interessa questa vendita?

north_east

Clicca qui per essere indirizzato alla scheda sul sito di provenienza

Bene di astegiudiziarie.it