highlight_off
Riferimento annuncio 301241 info

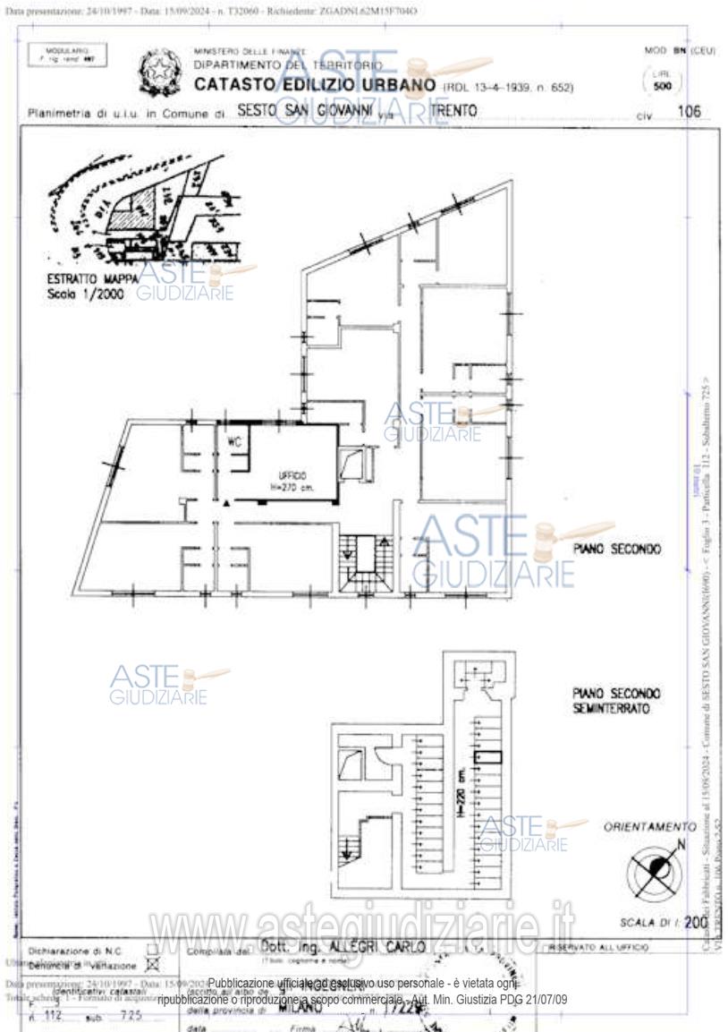
Appartamento Via Trento, 106, 20099 Sesto San Giovanni (MI)

2,00
31,50
2
€ 26.000
Vendita all'asta Senza incanto, con gara telematica sincrona - LOTTO UNICO: Ufficio di 31,50 mq posto al piano secondo. Prezzo base € 26.000,00 (offerta minima € 19.500,00). Data vendita 17/12/2025 ore 15:00. Giudice Caterina Rizzotto. Professionista delegato alla vendita Avv. Daniele Secchi - Email "avvocati@studiolegalesecchi.com"; Tel. 0362851073. Custode Giudiziario Avv. Daniele Secchi - Email "avvocati@studiolegalesecchi.com"; Tel. 0362851073. Rif. Tribunale di Monza - Espropriazione immobiliare (cartabia) n. 236/2024

Superficie 31,50 mq
Vani 2,00
Bagni
Piano 2

Tipologia di vendita Giudiziaria
Modalità di vendita Sincrona telematica
Termine presentazione offerte 15/12/2025 ore 13:00
Data e ora inizio gara 17/12/2025 ore 15:00
Codice ID astegiudiziarie.it 4324825
2,00
31,50
2
€ 26.000

Ti interessa questa vendita?

north_east

Clicca qui per essere indirizzato alla scheda sul sito di provenienza

Bene di astegiudiziarie.it