highlight_off
Riferimento annuncio 302116 info

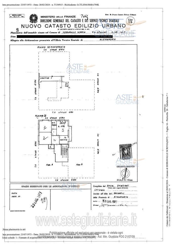
Appartamento Via Giovanni Pascoli, 48, 15069 Serravalle Scrivia AL, Italia, 15069 Serravalle Scrivia (AL)

0
€ 20.900
Vendita all'asta Senza incanto - LOTTO UNICO: In Comune di Serravalle Scrivia (AL), via G. Pascoli n. 48, appartamento posto all’ultimo piano di una palazzina con annessa cantina posta al piano seminterrato, attualmente accorpata al box auto di proprietà. Prezzo base € 20.900,00 (offerta minima € 15.675,00). Data vendita 03/12/2025 ore 09:45. Giudice Dott. Michele Delli Paoli. Professionista delegato alla vendita Avv. Marcella Fasciolo - Email "marcellafasciolo@libero.it"; Tel. 014375670. Custode Giudiziario Avv. Marcella Fasciolo - Email "marcellafasciolo@libero.it"; Tel. 014375670. Rif. Tribunale di Alessandria - Espropriazione immobiliare (cartabia) n. 319/2023

Superficie mq
Vani
Bagni
Piano 0

Tipologia di vendita Giudiziaria
Modalità di vendita Presso il venditore
Termine presentazione offerte 01/01/1900 ore 00:00
Data e ora inizio gara 03/12/2025 ore 09:45
Codice ID astegiudiziarie.it 4325468
0
€ 20.900

Ti interessa questa vendita?

north_east

Clicca qui per essere indirizzato alla scheda sul sito di provenienza

Bene di astegiudiziarie.it