highlight_off
Riferimento annuncio 291060 info

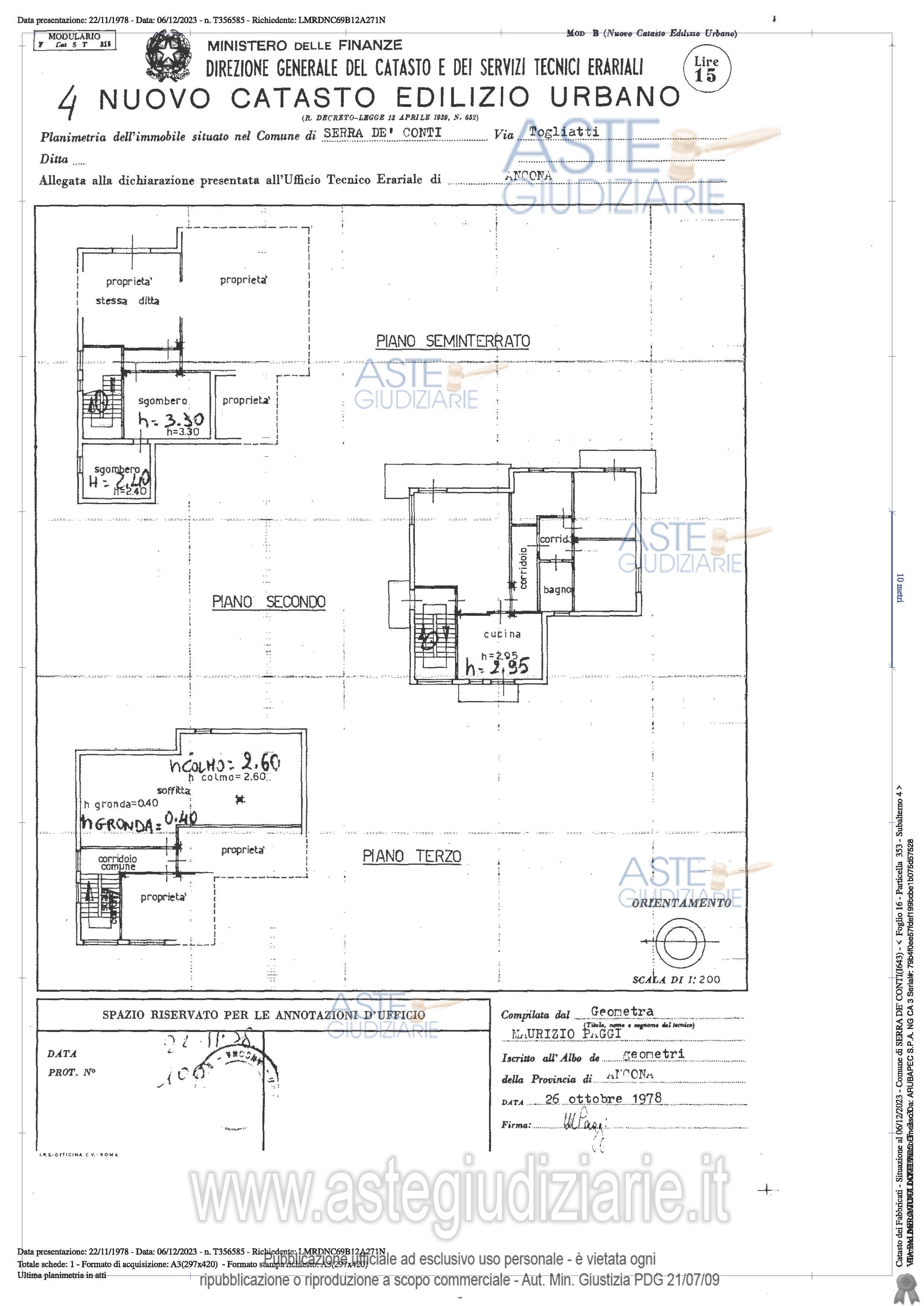
Appartamento Via P. Togliatti, 47, 60030 Serra De' Conti AN, Italia, 60030 Serra de' Conti (AN)

8,00
282,00
0
€ 64.125
Vendita all'asta Senza incanto, con gara telematica asincrona - LOTTO 1: Piena Proprietà (quota pari ad 1/1) di appartamento e garage, siti a Serra De Conti, Via Palmiro Togliatti, 47 in una zona residenziale di completamento a pochi passi dal centro storico e insistente su un’area con un accentuato declivio che permette di avere una buona visuale panoramica. L’appartamento si trova al piano secondo è costituito da un ingresso con soggiorno ampio, una cucina e un lungo disimpegno/corridoio che introduce alle tre camere e al bagno. Prezzo base € 64.125,00 (offerta minima € 48.094,00). Data inizio operazioni di vendita: 21/10/2025 ore 09:30. Professionista delegato alla vendita Dott. Filomena Mangiacotti. Custode Giudiziario Dott. Filomena Mangiacotti - Email "filomena.mangiacotti@gmail.com". Rif. Tribunale di Ancona - Espropriazione immobiliare (cartabia) n. 117/2023

Superficie 282,00 mq
Vani 8,00
Bagni
Piano 0

Tipologia di vendita Giudiziaria
Modalità di vendita Asincrona telematica
Termine presentazione offerte 01/01/1900 ore 00:00
Data e ora inizio gara 21/10/2025 ore 09:30
Codice ID astegiudiziarie.it 4316991
8,00
282,00
0
€ 64.125

Ti interessa questa vendita?

north_east

Clicca qui per essere indirizzato alla scheda sul sito di provenienza

Bene di astegiudiziarie.it