Riferimento annuncio 110154
        
    
    Appartamento Vicolo I Sant'Olimpia n 43, 09047 Selargius (CA)
                
                10,00
            
            
                
                231,00
            
            
                
                3
            
            
                
                0
            
        
€ 249.600    
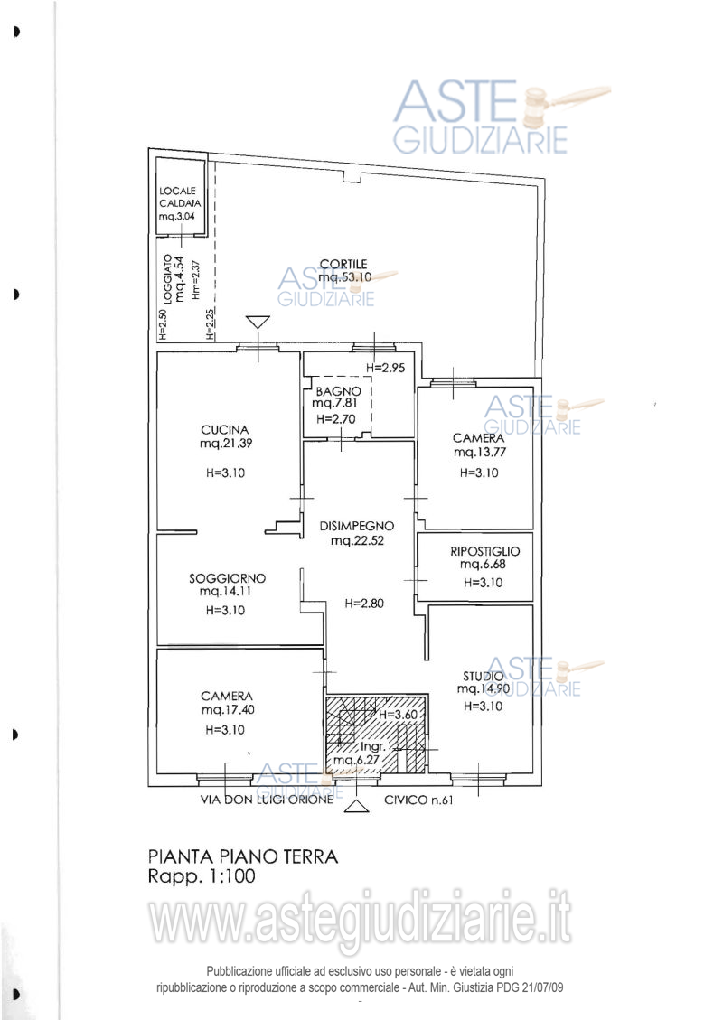
                Vendita all'asta Senza incanto, con gara telematica asincrona - LOTTO UNICO:  Piena proprietà dell’unità immobiliare avente accesso dal vicolo I Sant'Olimpia, composta da 10 vani, sita piano S1/T/1. Prezzo base € 249.600,00 (offerta minima € 187.200,00). Data inizio operazioni di vendita: 26/11/2025 ore 11:00. Giudice Dott. Francesco De Giorgi. Professionista delegato alla vendita Not. Michele Puxeddu - Email "mpuxeddu@notariato.it"; Tel. 070663241.  Rif. Tribunale di Cagliari - Contenzioso civile n. 4592/2008
            
   
| Superficie | 231,00 mq | 
|---|---|
| Vani | 10,00 | 
| Bagni | 3 | 
| Piano | 0 | 
| Tipologia di vendita | Giudiziaria | 
|---|---|
| Modalità di vendita | Asincrona telematica | 
| Termine presentazione offerte | 01/01/1900 ore 00:00 | 
| Data e ora inizio gara | 26/11/2025 ore 11:00 |