highlight_off
Riferimento annuncio 326505 info

Appartamento Via 7 Marzo n. 18, 00037 Segni RM, Italia, 00037 Segni (RM)

65,00
107,00
0
€ 71.250
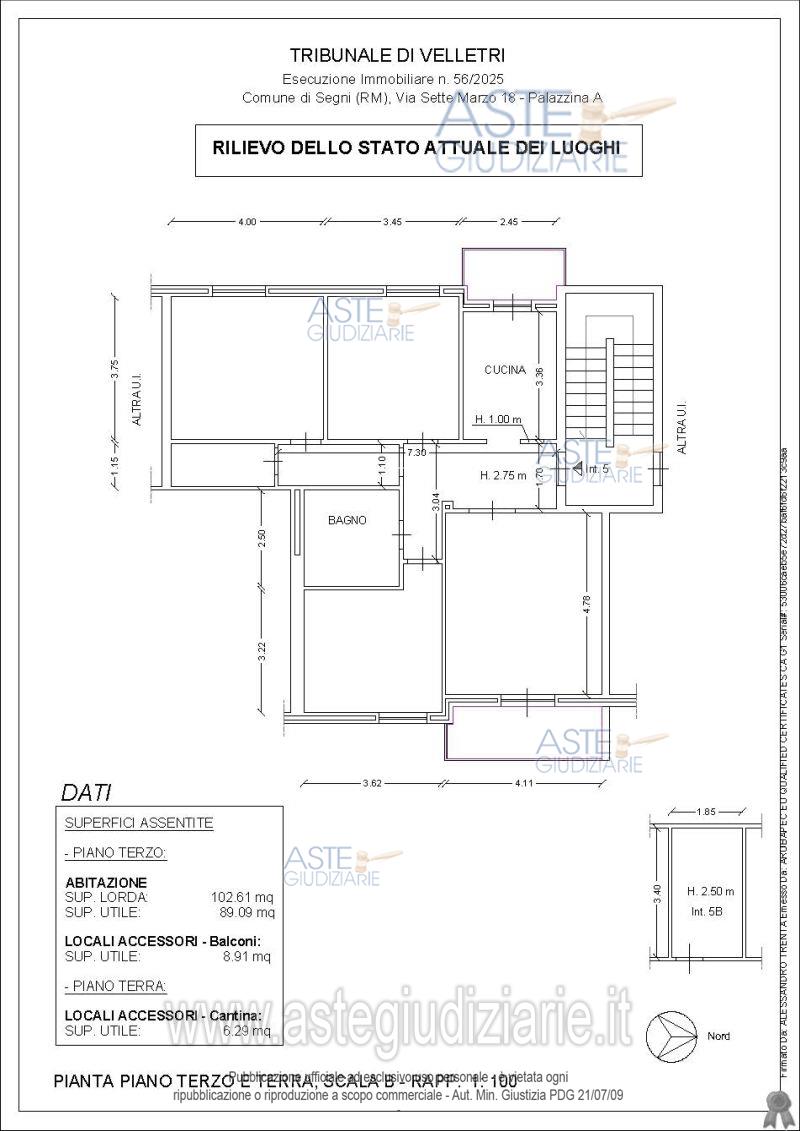
Vendita all'asta Senza incanto, con gara telematica asincrona - LOTTO UNICO: Diritto di proprietà superficiaria di appartamento sito in Via Sette Marzo n. 18, piano terzo interno 5, edificio "A", scala B, con annessa cantina al piano terra, distinta con interno 5/B e posto auto pertinenziale scoperto. L'immobile è stato realizzato in regime di edilizia residenziale pubblica convenzionata come risulta da Convenzione Edilizia trascritta presso la Conservatoria dei RR.II. di Velletri con formalità n. 614 del 02/03/1977. Prezzo base € 71.250,00 (offerta minima € 53.437,50). Data inizio operazioni di vendita: 09/07/2026 ore 15:00. Giudice: Dott.Ssa Anna Luisa Di Serafino. Professionista delegato alla vendita: Avv. Avv. Paolo Pistoia - Email "paolo.pistoia@alice.it". Custode Giudiziario: Avv. Avv. Paolo Pistoia - Email "paolo.pistoia@alice.it". Rif. Tribunale di Velletri - Espropriazione immobiliare (cartabia) n. 56/2025

Superficie 107,00 mq
Vani 65,00
Bagni
Piano 0

Tipologia di vendita Giudiziaria
Modalità di vendita Asincrona telematica
Termine presentazione offerte 08/07/2026 ore 23:59
Data e ora inizio gara 09/07/2026 ore 15:00
Codice ID astegiudiziarie.it 4344942
65,00
107,00
0
€ 71.250

Ti interessa questa vendita?

north_east

Clicca qui per essere indirizzato alla scheda sul sito di provenienza

Bene di astegiudiziarie.it