highlight_off
Riferimento annuncio 98184 info

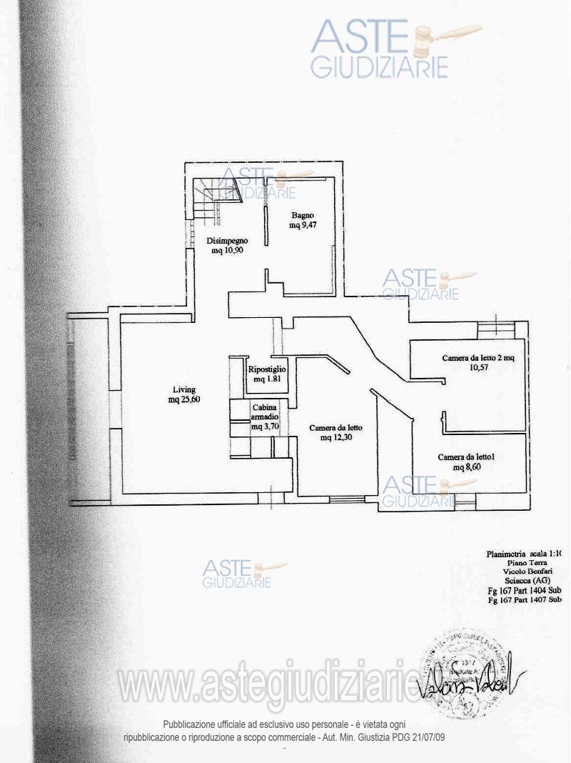
Appartamento Via Sanfilippo, 114, 92019 Sciacca AG, Italia, 92019 Sciacca (AG)

5,00
228,51
1
0
€ 22.721
Vendita all'asta Senza incanto, con gara telematica asincrona - LOTTO UNICO: Piena proprietà (1/1) di unità immobiliare a tre elevazione fuori terra. Prezzo base € 22.720,50 (offerta minima € 17.040,37). Data inizio operazioni di vendita: 27/11/2025 ore 17:00. Giudice Dott. Veronica Messana. Professionista delegato alla vendita Avv. Francesco Graffeo - Email "francescograffeos@legalmail.it"; Cell. 3474900736; Tel. 0925901253. Custode Giudiziario Avv. Francesco Graffeo - Email "francescograffeos@legalmail.it"; Cell. 3474900736; Tel. 0925901253. Rif. Tribunale di Sciacca - Esecuzione immobiliare post legge 80 n. 62/2009

Superficie 228,51 mq
Vani 5,00
Bagni 1
Piano 0

Tipologia di vendita Giudiziaria
Modalità di vendita Asincrona telematica
Termine presentazione offerte 01/01/1900 ore 00:00
Data e ora inizio gara 27/11/2025 ore 17:00
Codice ID astegiudiziarie.it 257249
5,00
228,51
1
0
€ 22.721

Ti interessa questa vendita?

north_east

Clicca qui per essere indirizzato alla scheda sul sito di provenienza

Bene di astegiudiziarie.it