highlight_off
Riferimento annuncio 332638 info

Appartamento Via PIAVE 8, 27020 Scaldasole (PV)

50,00
142,00
0
€ 72.100
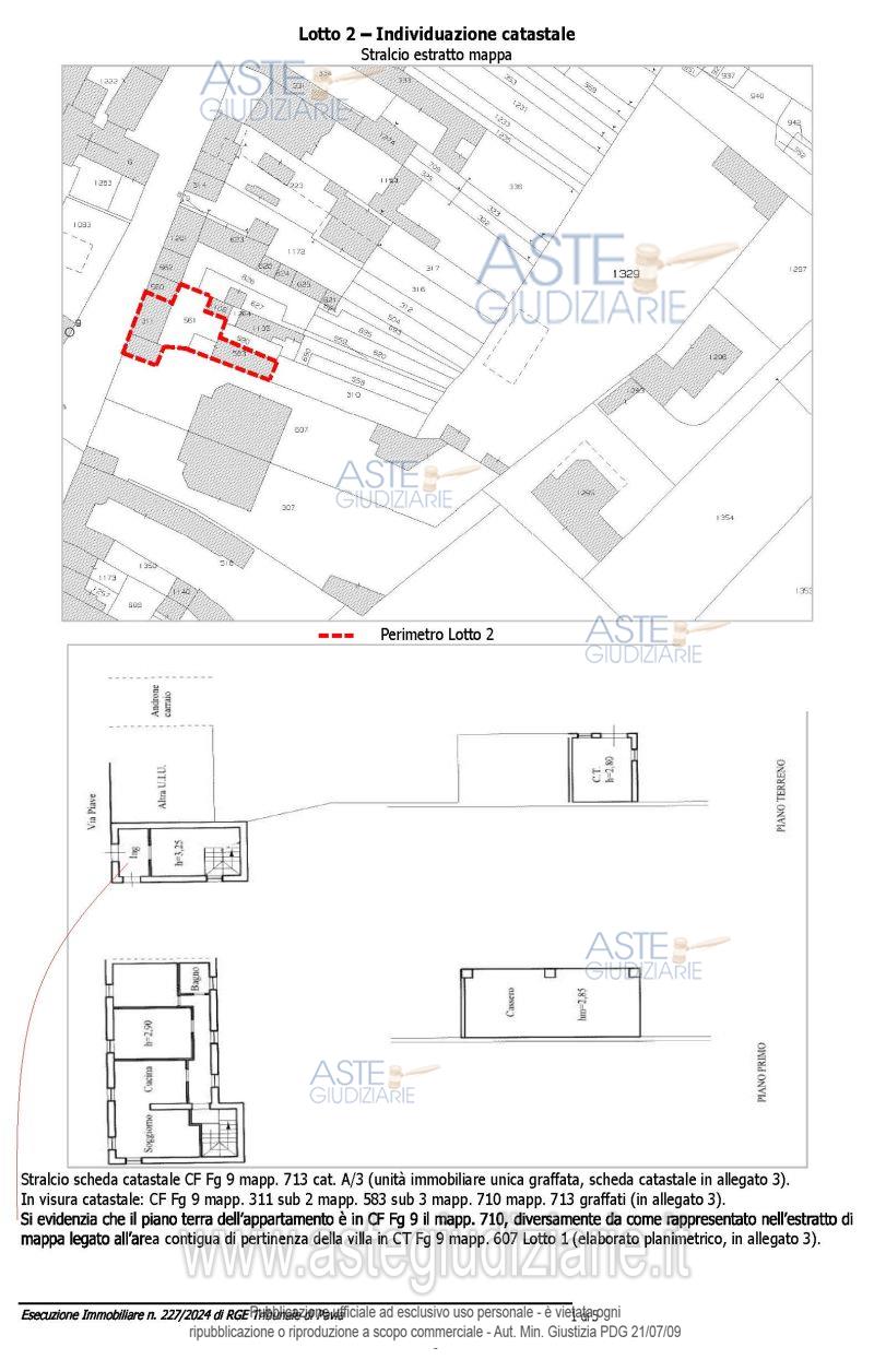
Vendita all'asta Senza incanto, con gara telematica asincrona - LOTTO 2: Abitazione al piano terra. Prezzo base € 72.100,00 (offerta minima € 54.075,00). Data inizio operazioni di vendita: 23/06/2026 ore 15:00. Giudice: Francesca Claris Appiani. Professionista delegato alla vendita: Avv. Gaetano Abela. Custode Giudiziario: Istituto Vendite Giudiziarie Di Vigevano - Email "immobiliarivigevano@ifir.it"; Tel. 0381/691137. Rif. Tribunale di Pavia - Espropriazione immobiliare (cartabia) n. 227/2024

Superficie 142,00 mq
Vani 50,00
Bagni
Piano 0

Tipologia di vendita Giudiziaria
Modalità di vendita Asincrona telematica
Termine presentazione offerte 01/01/1900 ore 00:00
Data e ora inizio gara 23/06/2026 ore 15:00
Codice ID astegiudiziarie.it 4350139
50,00
142,00
0
€ 72.100

Ti interessa questa vendita?

north_east

Clicca qui per essere indirizzato alla scheda sul sito di provenienza

Bene di astegiudiziarie.it