Riferimento annuncio 300545
        
    
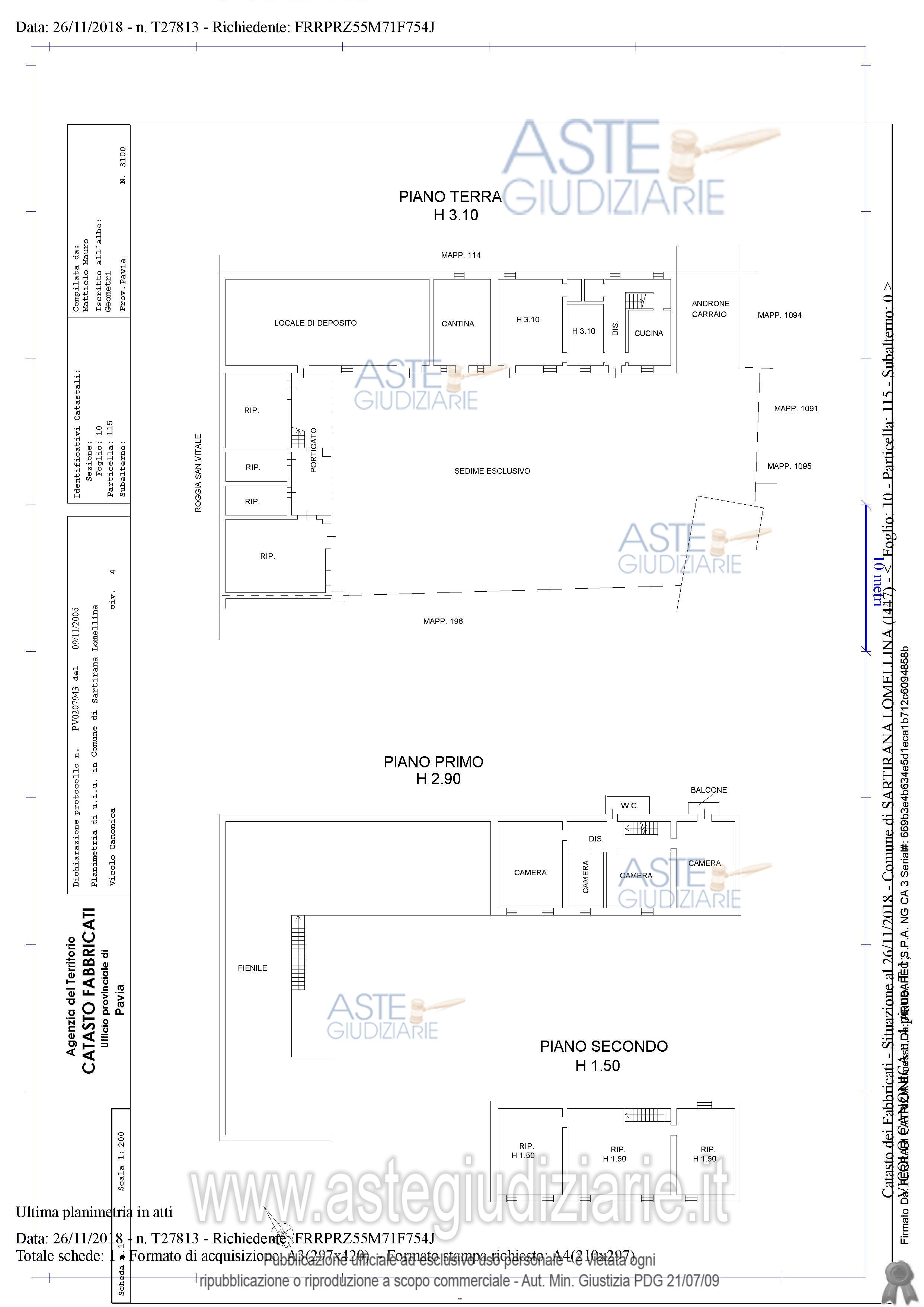
    Appartamento Vicolo Canonica, 4, 27020 Sartirana Lomellina (PV)
                
                11,00
            
            
                
                311,00
            
            
                
                0
            
        
€ 25.621    
                Vendita in attesa dell'emissione del nuovo bando d'asta. LOTTO UNICO: Piena proprietà di un fabbricato posto su tre piani fuori terra. e piena proprietà di un fabbricato su due piani fuori terra. Ultimo prezzo base € 25.620,80 (offerta minima € 19.215,60). Giudice Erminio Rizzi. Professionista delegato alla vendita Avv. Claudia Natalina Mairate - Email "mairate@studio-avvocati-associati.it"; Tel. 038179678. Custode Giudiziario  Istituto Vendite Giudiziarie Di Vigevano - Email "richiestevisite.vigevano@ifir.it"; Tel. 0381691137.  Rif. Tribunale di Pavia ex Tribunale di Vigevano - Esecuzione immobiliare post legge 80 n. 301/2012
            
   
| Superficie | 311,00 mq | 
|---|---|
| Vani | 11,00 | 
| Bagni | |
| Piano | 0 | 
| Tipologia di vendita | Giudiziaria | 
|---|---|
| Modalità di vendita | Asincrona telematica | 
| Termine presentazione offerte | 01/01/1900 ore 00:00 | 
| Data e ora inizio gara | 08/05/2025 ore 15:00 | 
 
                         
                         
                         
                         
                         
                         
                         
                         
                        