Riferimento annuncio 301751
        
    
    Appartamento Via Acquarossa, già via nuova Lavorate n. 24 bis, 84087 Sarno (SA)
                
                0
            
        
€ 58.950    
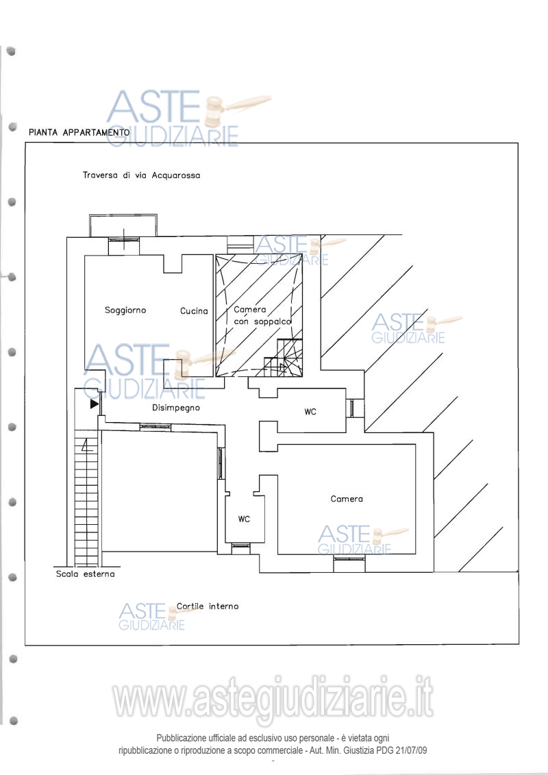
                Vendita all'asta Senza incanto - LOTTO UNICO:  Porzione di fabbricato rappresentata, di fatto, da un appartamento che, in particolare è collocato al primo piano del fabbricato e da un piccolo locale deposito, posto nel cortile dello stesso immobile. Prezzo base € 58.950,00 (offerta minima € 44.213,00). Data vendita 12/11/2025 ore 19:00. Giudice Maria Troisi. Professionista delegato alla vendita Avv. Carmencita D'amore. Custode Giudiziario Avv. Carmencita D'amore - Email "dcarmencita@email.it"; Cell. 3471812574; Tel. 081925888.  Rif. Tribunale di Nocera Inferiore - Esecuzione immobiliare post legge 80 n. 35/2011
            
   
| Superficie | mq | 
|---|---|
| Vani | |
| Bagni | |
| Piano | 0 | 
| Tipologia di vendita | Giudiziaria | 
|---|---|
| Modalità di vendita | Presso il venditore | 
| Termine presentazione offerte | 01/01/1900 ore 00:00 | 
| Data e ora inizio gara | 12/11/2025 ore 19:00 | 
 
                         
                         
                         
                         
                         
                         
                         
                         
                         
                        