Riferimento annuncio 317842
        
    
    Appartamento Via Albinoni, 1, 64027 Sant'Omero TE, Italia, 64027 Sant'Omero (TE)
                
                8,00
            
            
                
                142,00
            
            
                
                2
            
        
€ 50.000    
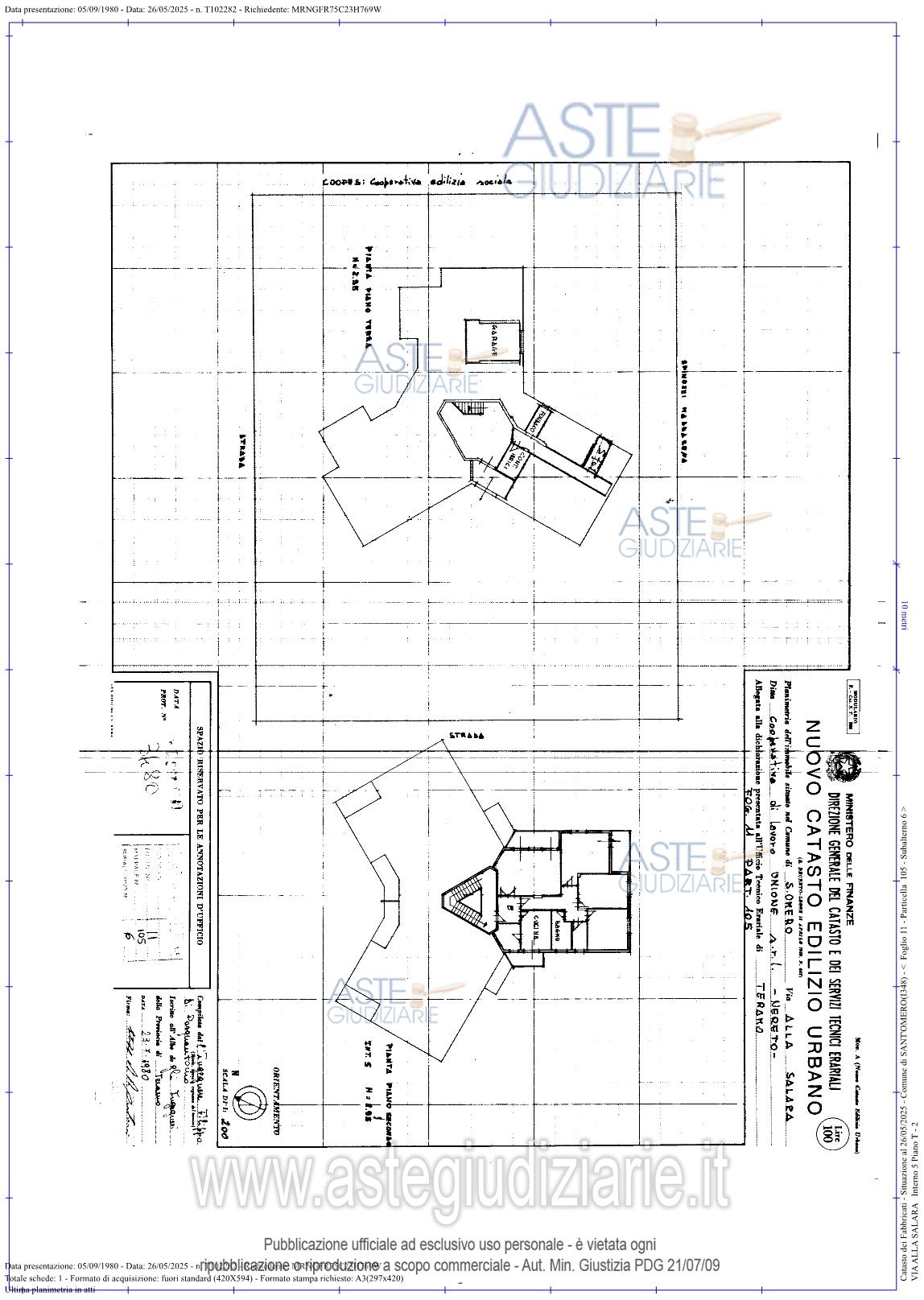
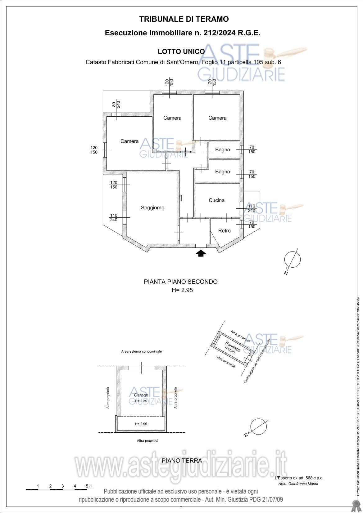
                Vendita all'asta Senza incanto, con gara telematica asincrona - LOTTO UNICO:  LOTTO UNICO: diritti pari alla piena proprietà 1/1 su appartamento di civile abitazione al piano secondo, consistenza catastale di 8 vani, composto da ingresso, disimpegno, cucina con retro, soggiorno, due bagni, tre camere e tre balconi, oltre a locali accessori ad uso fondaco e garage al piano terra, il tutto facente parte di un fabbricato ad uso residenziale di maggiore consistenza che si sviluppa su quattro piani fuori terra, sito a Sant'Omero (TE) in Via Tommaso Albinoni (già Via alla Salara), n. 1. Prezzo base € 50.000,00 (offerta minima € 37.500,00). Data inizio operazioni di vendita: 17/12/2025 ore 10:00. Professionista delegato alla vendita Avv. Alessandra Maria Ciccarelli - Email "a.ciccarelli@iustec.it"; Tel. 0861711924. Custode Giudiziario Avv. Alessandra Maria Ciccarelli.  Rif. Tribunale di Teramo - Espropriazione immobiliare (cartabia) n. 212/2024
            
   
| Superficie | 142,00 mq | 
|---|---|
| Vani | 8,00 | 
| Bagni | |
| Piano | 2 | 
| Tipologia di vendita | Giudiziaria | 
|---|---|
| Modalità di vendita | Asincrona telematica | 
| Termine presentazione offerte | 01/01/1900 ore 00:00 | 
| Data e ora inizio gara | 17/12/2025 ore 10:00 | 
 
                         
                        