highlight_off
Riferimento annuncio 121408 info

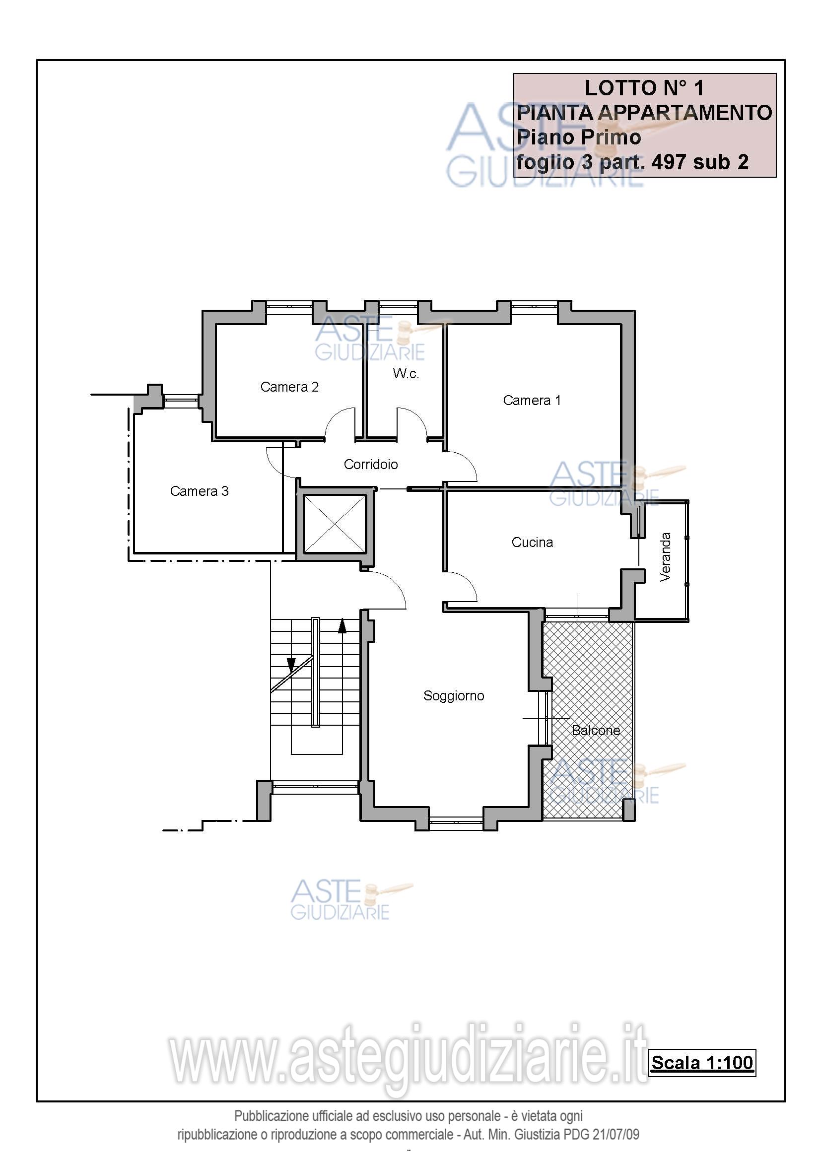
Appartamento Viale Marche, 4, 64016 Sant'Egidio alla Vibrata TE, Italia, 64016 Sant'Egidio alla Vibrata (TE)

6,50
119,00
0
€ 56.175
Vendita all'asta Senza incanto, con gara telematica asincrona - LOTTO 1: •Diritti pari alla piena proprietà di appartamento posto al primo piano di un fabbricato sito nel Comune di Sant’Egidio alla Vibrata alla Via Marche n. 4, con annesso un locale adibito a fondaco posto al piano rialzato. Si accede all’appartamento tramite scala condominiale. L’immobile è composto da ingresso, soggiorno, cucina con veranda, corridoio, tre camere, un bagno ed un balcone. La superficie convenzionale complessiva è di 119,00 mq circa. I beni non sono divisibili in natura. Prezzo base € 56.175,00 (offerta minima € 43.131,25). Data inizio operazioni di vendita: 22/10/2025 ore 15:00. Professionista delegato alla vendita Avv. Annalisa Caschera - Email "avvocatocaschera@gmail.com"; Cell. 3333242254. Custode Giudiziario Avv. Annalisa Caschera - Email "avvocatocaschera@gmail.com"; Cell. 3333242254. Rif. Tribunale di Teramo - Esecuzione immobiliare post legge 80 n. 302/2014

Superficie 119,00 mq
Vani 6,50
Bagni
Piano 0

Tipologia di vendita Giudiziaria
Modalità di vendita Asincrona telematica
Termine presentazione offerte 21/10/2025 ore 23:59
Data e ora inizio gara 22/10/2025 ore 15:00
Codice ID astegiudiziarie.it 418791
6,50
119,00
0
€ 56.175

Ti interessa questa vendita?

north_east

Clicca qui per essere indirizzato alla scheda sul sito di provenienza

Bene di astegiudiziarie.it