highlight_off
Riferimento annuncio 326047 info

Appartamento Viale Italia, 85037 San Brancato PZ, Italia, 85037 Sant'Arcangelo (PZ)

8,00
210,00
0
€ 122.000
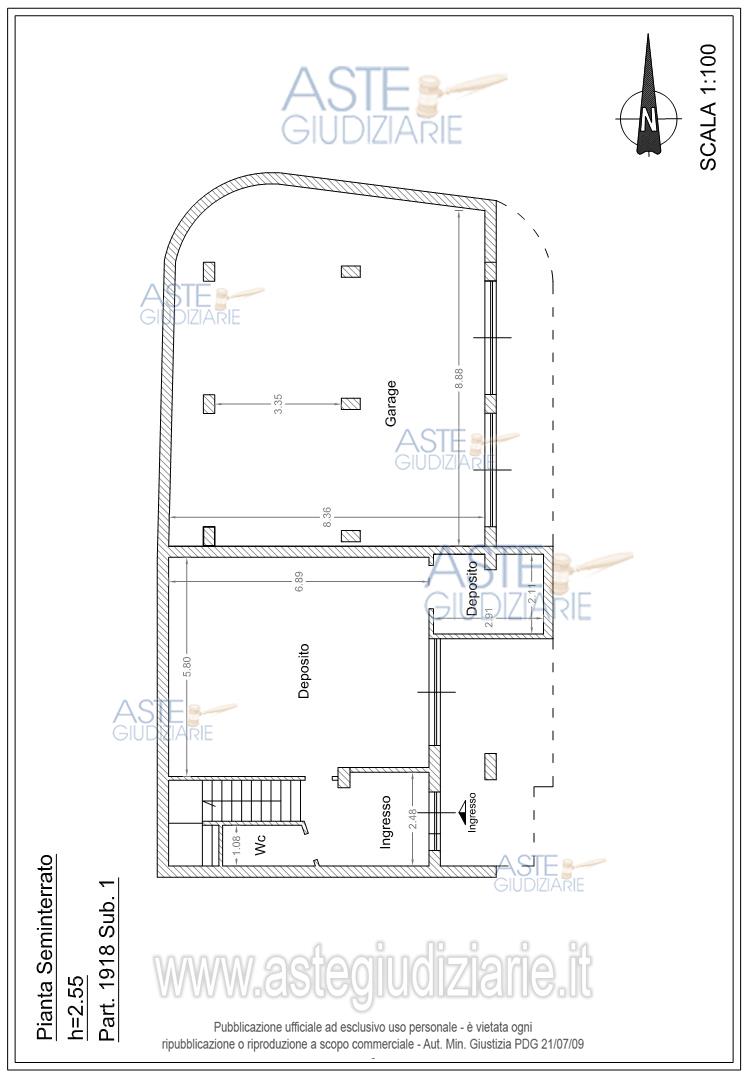
Vendita all'asta Senza incanto, con gara telematica asincrona - LOTTO UNICO: Abitazione, ubicata in Sant’Arcangelo (PZ) Viale Italia, snc Fg.18 Part. 1918 Sub.1. Prezzo base € 122.000,00 (offerta minima € 91.500,00). Data inizio operazioni di vendita: 08/04/2026 ore 15:00. Giudice Dott. Aniello Maria De Piano. Professionista delegato alla vendita Avv. Paolo Alfano - Email "paolo.alfano@gmail.com"; Cell. 3475175268. Custode Giudiziario Dott. Massimiliano Carnevale - Email "studiocommercialecarnevale@gmail.com"; Cell. 335495522. Rif. Tribunale di Lagonegro - Esecuzione immobiliare post legge 80 n. 84/2014

Superficie 210,00 mq
Vani 8,00
Bagni
Piano 0

Tipologia di vendita Giudiziaria
Modalità di vendita Asincrona telematica
Termine presentazione offerte 07/04/2026 ore 13:00
Data e ora inizio gara 08/04/2026 ore 15:00
Codice ID astegiudiziarie.it 4344946
8,00
210,00
0
€ 122.000

Ti interessa questa vendita?

north_east

Clicca qui per essere indirizzato alla scheda sul sito di provenienza

Bene di astegiudiziarie.it