highlight_off
Riferimento annuncio 230317 info

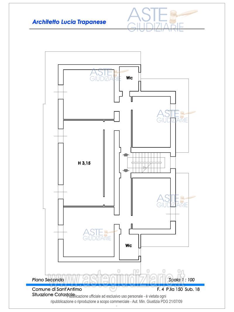
Appartamento Via Cimabue, 22 Piano 2 interno 5, 80029 Sant'Antimo (NA)

7,00
144,79
2
€ 99.563
Vendita all'asta Senza incanto, con gara telematica asincrona - LOTTO UNICO: Diritto pieno e intera proprietà unità immobiliare ad uso residenziale in Sant’Antimo, Via Cimabue civico 22 - identificazione catastale: foglio 4, p.lla 150, sub. 18, di sup. catastale complessiva mq 198 (aree scoperte mq. 12); consistenza 7 vani, cat. A/2, SUP interna dell’appartamento circa mq 144,79, balconi circa mq 76,92. Trattasi di appartamento al 2° piano di fabbricato ad uso famigliare, occupato dai debitori esecutati. Prezzo base € 99.563,00 (offerta minima € 74.672,00). Data inizio operazioni di vendita: 26/02/2026 ore 16:00. Custode Giudiziario Dott. Francesco Russo - Email "studiocasillorusso@libero.it"; Tel. 0815404454. Rif. Tribunale di Napoli - Esecuzione immobiliare post legge 80 n. 1310/2013

Superficie 144,79 mq
Vani 7,00
Bagni
Piano 2

Tipologia di vendita Giudiziaria
Modalità di vendita Asincrona telematica
Termine presentazione offerte 01/01/1900 ore 00:00
Data e ora inizio gara 26/02/2026 ore 16:00
Codice ID astegiudiziarie.it 4275859
7,00
144,79
2
€ 99.563

Ti interessa questa vendita?

north_east

Clicca qui per essere indirizzato alla scheda sul sito di provenienza

Bene di astegiudiziarie.it