highlight_off
Riferimento annuncio 92416 info

Appartamento Via Fontane 81, 09010 Santadi (SU)

10,00
200,95
1
0
€ 48.019
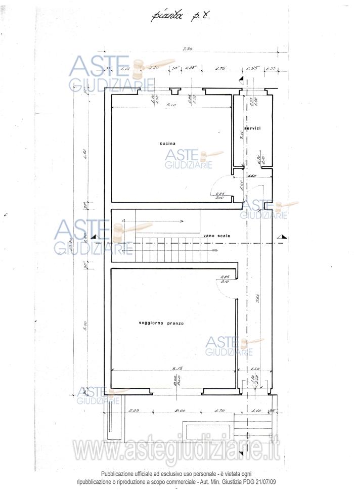
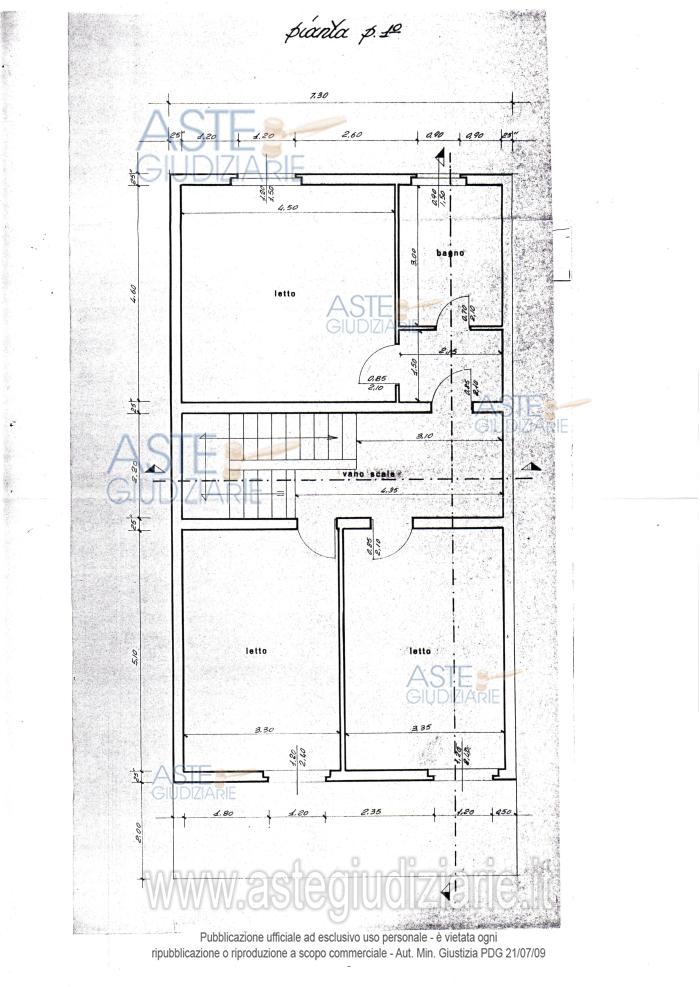
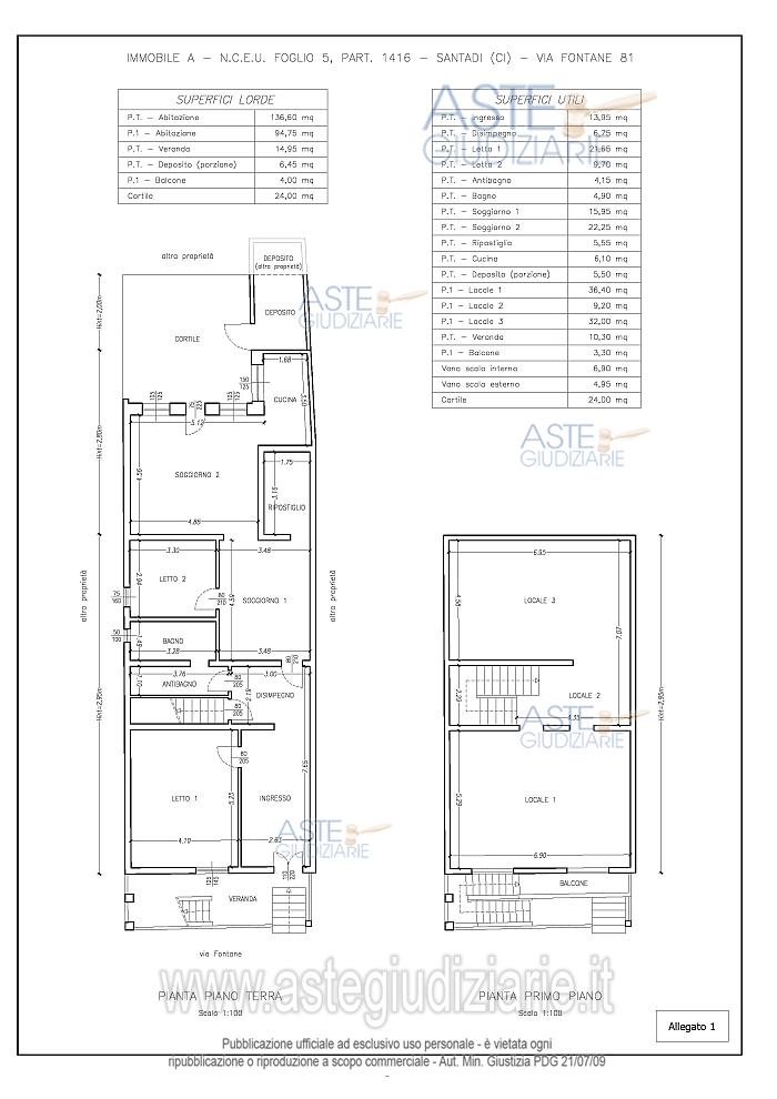
Vendita all'asta Senza incanto - LOTTO 1: Quota pari a 1/1 del diritto di proprietà su unità immobiliare ad uso civile abitazione, sita in Comune di Santadi, Via Fontane n. 81, piano terra e primo piano (nella visura catastale aggiornata al 22/11/2023 è indicato il civico n.63) identificata al Catasto Fabbricati del Comune di Santadi alla Sezione Urbana E, Foglio 5, Particella 1416, Cat. A/2, Classe 4, Vani 10, rendita catastale € 506,13. Prezzo base € 48.018,64 (offerta minima € 36.013,98). Data vendita 02/12/2025 ore 15:00. Giudice Dott. Valentina Frongia. Professionista delegato alla vendita Rag. Maria Gabriella Curto - Email "curtogabri@tiscali.it"; Tel. 0702058710. Rif. Tribunale di Cagliari - Esecuzione immobiliare post legge 80 n. 285/2012

Superficie 200,95 mq
Vani 10,00
Bagni 1
Piano 0

Tipologia di vendita Giudiziaria
Modalità di vendita Presso il venditore
Termine presentazione offerte 01/01/1900 ore 00:00
Data e ora inizio gara 02/12/2025 ore 15:00
Codice ID astegiudiziarie.it 315196
10,00
200,95
1
0
€ 48.019

Ti interessa questa vendita?

north_east

Clicca qui per essere indirizzato alla scheda sul sito di provenienza

Bene di astegiudiziarie.it