highlight_off
Riferimento annuncio 294784 info

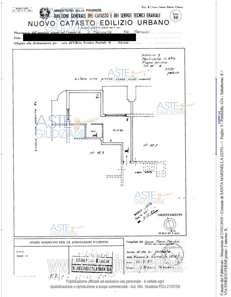
Appartamento Via Enrico Fermi, 3 00058 Santa Marinella RM, Italia, 00058 Santa Marinella (RM)

3,00
61,21
0
€ 57.400
Vendita all'asta Senza incanto, con gara telematica asincrona - LOTTO UNICO: IMMOBILE POSTO AL PRIMO PIANO INGRESSO SU CORRIDOIO ANGOLO COTTURA SOGGIORNO DISIMPEGNO BAGNO E CAMERA DA LETTO DUE BALCONI- BOX AUTO . Prezzo base € 57.400,00 (offerta minima € 43.050,00). Data inizio operazioni di vendita: 21/01/2026 ore 14:00. Professionista delegato alla vendita Avv. Marzia Sbragaglia - Email "marzia.sbragaglia@gmail.com"; Cell. 3939457463; Tel. 3939457463. Custode Giudiziario Avv. Marzia Sbragaglia - Email "marzia.sbragaglia@gmail.com"; Cell. 3939457463; Tel. 3939457463. Rif. Tribunale di Civitavecchia - Esecuzione immobiliare post legge 80 n. 380/2017

Superficie 61,21 mq
Vani 3,00
Bagni
Piano 0

Tipologia di vendita Giudiziaria
Modalità di vendita Asincrona telematica
Termine presentazione offerte 20/01/2026 ore 13:00
Data e ora inizio gara 21/01/2026 ore 14:00
Codice ID astegiudiziarie.it 4319826
3,00
61,21
0
€ 57.400

Ti interessa questa vendita?

north_east

Clicca qui per essere indirizzato alla scheda sul sito di provenienza

Bene di astegiudiziarie.it