highlight_off
Riferimento annuncio 307265 info

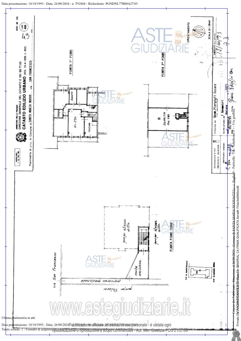
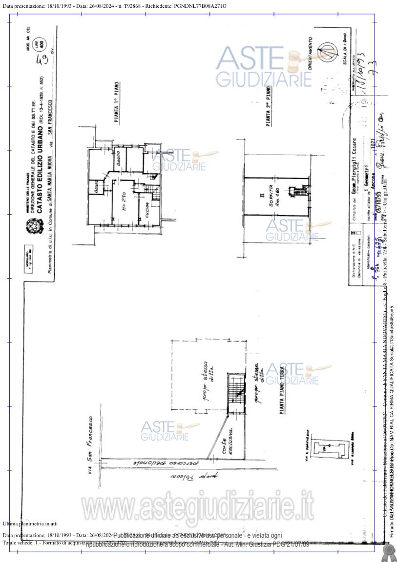
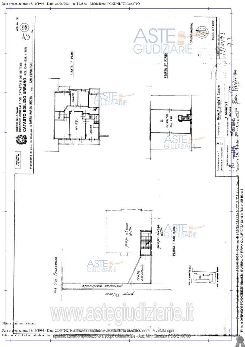
Appartamento Via S. Francesco, 53C, 60030 Santa Maria Nuova AN, Italia, 60030 Santa Maria Nuova (AN)

7,50
166,00
0
€ 170.700
Vendita all'asta Senza incanto, con gara telematica asincrona - LOTTO UNICO: Diritto di piena proprietà per la quota di 1/1 su appartamento posto al piano primo. Prezzo base € 170.700,00 (offerta minima € 128.025,00). Data inizio operazioni di vendita: 20/11/2025 ore 12:30. Professionista delegato alla vendita Avv. Alessandro Doffo. Custode Giudiziario Avv. Alessandro Doffo - Email "alessandrodoffo@gmail.com". Rif. Tribunale di Ancona - Espropriazione immobiliare (cartabia) n. 137/2024

Superficie 166,00 mq
Vani 7,50
Bagni
Piano 0

Tipologia di vendita Giudiziaria
Modalità di vendita Asincrona telematica
Termine presentazione offerte 19/11/2025 ore 12:00
Data e ora inizio gara 20/11/2025 ore 12:30
Codice ID astegiudiziarie.it 4329486
7,50
166,00
0
€ 170.700

Ti interessa questa vendita?

north_east

Clicca qui per essere indirizzato alla scheda sul sito di provenienza

Bene di astegiudiziarie.it