highlight_off
Riferimento annuncio 314784 info

Appartamento via melorio, 81055 Santa Maria Capua Vetere (CE)

7,00
166,00
3
€ 180.000
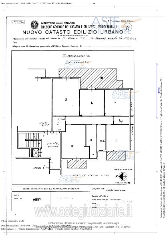
Vendita all'asta Senza incanto, con gara telematica asincrona - LOTTO UNICO: Piena ed intera proprietà di appartamento e di box auto facenti parte del complesso denominato “Condominio P.co Valentino” ubicato in Santa Maria Capua Vetere (CE) alla Via Melorio. L’appartamento, contraddistinto con l’interno n.8, è posto al terzo piano della scala B ed è composto da ingresso, disimpegno, cucina, soggiorno, w.c., bagno, tre camere, ripostiglio, balconi e terrazzo. Il box auto, contraddistinto con il n.18, è posto al piano interrato ed ha una consistenza catastale di mq.15. Prezzo base € 180.000,00 (offerta minima € 135.000,00). Data inizio operazioni di vendita: 11/11/2025 ore 10:30. Giudice Emiliano Vassallo. Professionista delegato alla vendita Avv. Rosa Luongo. Custode Giudiziario Avv. Rosa Luongo - Email "studioluongo@tiscali.it". Rif. Tribunale di Santa Maria Capua Vetere - Esecuzione immobiliare post legge 80 n. 231/2023

Superficie 166,00 mq
Vani 7,00
Bagni
Piano 3

Tipologia di vendita Giudiziaria
Modalità di vendita Asincrona telematica
Termine presentazione offerte 10/11/2025 ore 23:59
Data e ora inizio gara 11/11/2025 ore 10:30
Codice ID astegiudiziarie.it 4335419
7,00
166,00
3
€ 180.000

Ti interessa questa vendita?

north_east

Clicca qui per essere indirizzato alla scheda sul sito di provenienza

Bene di astegiudiziarie.it